Thatched cottage on Ham Manor estate — large plot, garage and easy rail commute to London..
- Exclusive gated Ham Manor location within private golf estate
- Large open-plan kitchen/dining with central island and bi-fold doors
- Three double bedrooms, each with private en-suite and fitted storage
- Integral double garage, rear workshop and generous gravel driveway parking
- Very large, secluded gardens with mature trees and flint walls
- EPC C and double glazing installed after 2002
- Thatched roof: characterful but requires specialist maintenance and insurance
- Built 1930s; cavity walls assumed uninsulated and council tax is high
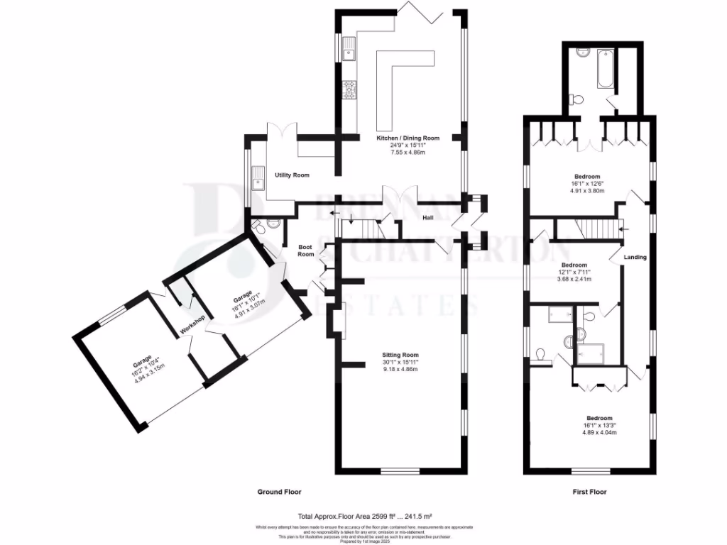
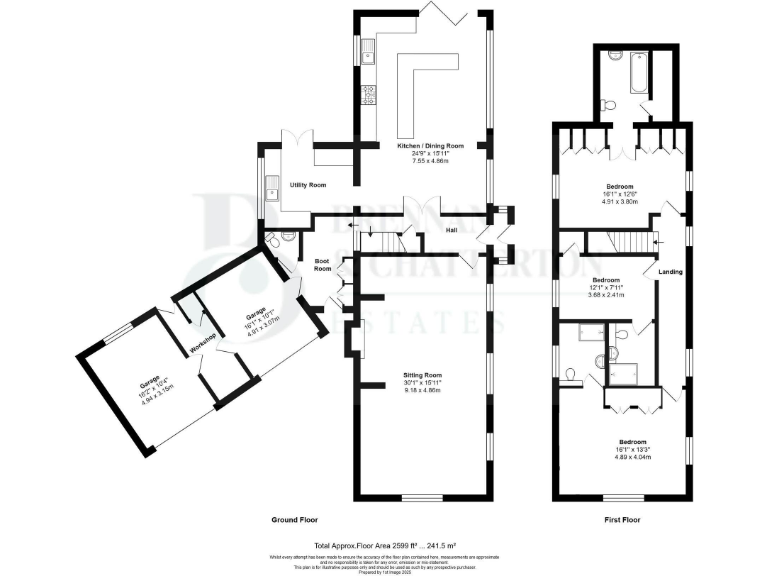
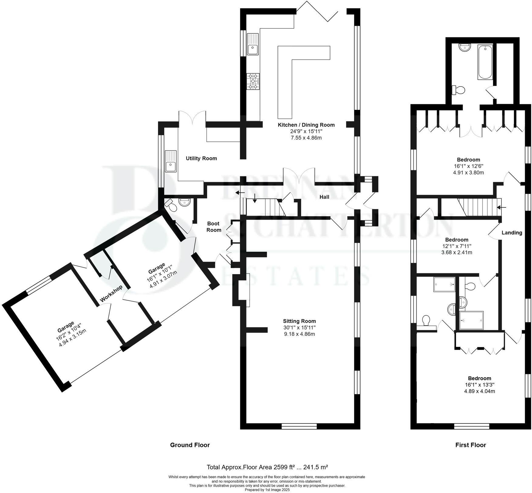
An imposing thatched residence set within the private, gated Ham Manor estate, this three-bedroom detached home blends historic character with spacious, contemporary living. The heart of the house is a large open-plan kitchen/dining/family room with a central island and bi-fold doors that lead directly to sheltered patio and lawn areas. The dual-aspect sitting room with feature fireplace and plentiful natural light creates a comfortable principal reception.
Each of the three double bedrooms has its own en-suite and built-in storage, with the principal suite offering generous proportions and a sense of privacy. Practical ground-floor accommodation includes an entrance hall, boot room, cloakroom, utility area, and direct access into an integral double garage plus rear workshop. A broad gravel drive provides additional parking for several vehicles.
Externally the property sits on a very large plot with mature trees, flint boundary walls and well-established hedging that deliver seclusion. Residents enjoy immediate access to the Ham Manor golf clubhouse and course, and the Angmering mainline station is within walking distance for commutable links to London (around 90 minutes).
Important practical notes: the house dates from the 1930s and retains a traditional thatched roof, which brings character but also specialist maintenance and insurance considerations. Walls are assumed to be cavity construction without added insulation, and council tax is described as quite expensive. The property has double glazing installed post-2002 and an EPC rating of C, but buyers should budget for ongoing upkeep typical of older, thatched homes.
5 bedroom detached house for sale in East Drive, Angmering, BN16 — £1,600,000 • 5 bed • 4 bath • 3840 ft²
4 bedroom detached house for sale in The Fairway, Aldwick Bay Estate, West Sussex, PO21 — £950,000 • 4 bed • 2 bath • 2648 ft²
4 bedroom detached house for sale in The Thatchway, Angmering, BN16 — £1,500,000 • 4 bed • 3 bath • 2778 ft²
5 bedroom detached house for sale in East Drive, Angmering, BN16 — £1,175,000 • 5 bed • 3 bath • 2705 ft²
3 bedroom terraced house for sale in West Drive, Ham Manor, Angmering, West Sussex, BN16 — £495,000 • 3 bed • 1 bath • 1131 ft²
5 bedroom detached house for sale in Guildford Road, Clemsfold, Horsham, RH12 — £1,200,000 • 5 bed • 4 bath • 2478 ft²










































































































