High-yield multi-let office/warehouse in Sutton with strong immediate income potential.
Large newly refurbished two-storey office and warehouse, c.11,000 sq ft
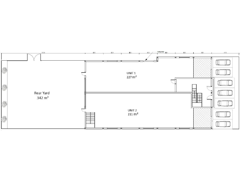
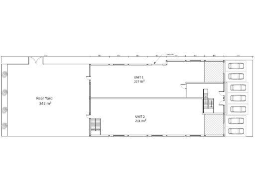
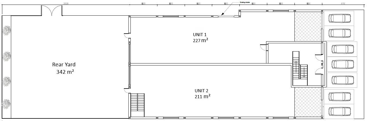
A substantial long-leasehold commercial investment in the heart of Kimpton Business Park, presented as a newly refurbished two-storey office and warehouse building extending to c.11,000 sq ft. The property provides 9 office units and 2 warehouse units, communal reception and meeting facilities, air conditioning and breakout space — arranged to suit multiple occupiers or single-operator flexibility.
Income fundamentals are strong: current contracted rent of £219,000 p.a., three vacant units, and a total ERV of £255,000 p.a., equating to a gross initial yield (GIY) of 12.75% at the asking price of £2,000,000. VAT is not applicable. The sale includes a sale-and-leaseback for Unit 6 with a new five-year lease at £12,000 p.a. on completion, supporting immediate headline income.
The building’s recent refurbishment and contemporary industrial façade reduce short-term capex risk and create easy lettability to trade occupiers — located near Parcelforce, Screwfix, Tesco Extra and good road/rail links (A217, M25, Sutton Common station 0.7 miles). The configuration suits investors seeking multi-let exposure or an owner-occupier wanting income flexibility.
Buyers should note important lease and running-cost items: the property is held on a long lease with 88 years remaining and an annual ground rent of £20,900 (next rent review 29 Sept 2028 on open market, upward only). Three units are currently vacant (Units 4, 9 and 11), and several units are let on licences rather than full leases. Crime in the area is above average and the site yard is small, which may affect certain occupiers dependent on larger external storage or high-turnaround logistics.
Commercial property for sale in Garth Road, Morden, SM4 — £950,000 • 1 bed • 1 bath • 4768 ft²
Light industrial facility for sale in Riverwalk Business Park, Riverwalk Road, Enfield, Greater London, EN3 — £1,200,000 • 1 bed • 1 bath • 3972 ft²
Industrial park for sale in Unit 14, Tait Road Industrial Estate, Tait Road, Croydon, Surrey, CR0 2DP, CR0 — £825,000 • 1 bed • 1 bath • 4264 ft²
Industrial park for sale in Unit 3, Metroplex Park, Red Lion Road, Tolworth, KT6 7QD, KT6 — POA • 1 bed • 1 bath • 6707 ft²
Light industrial facility for sale in Metroplex Park, Red Lion Road, Tolworth, KT6 7QD, KT6 — POA • 1 bed • 1 bath • 18117 ft²
Light industrial facility for sale in Units 13-15 Hurlingham Business Park, Fulham, SW6 3DU, SW6 — £3,950,000 • 1 bed • 1 bath • 9320 ft²






































