Spacious three-bedroom home with planning consent for valuable extension.
Edge-of-village plot with orchard outlook
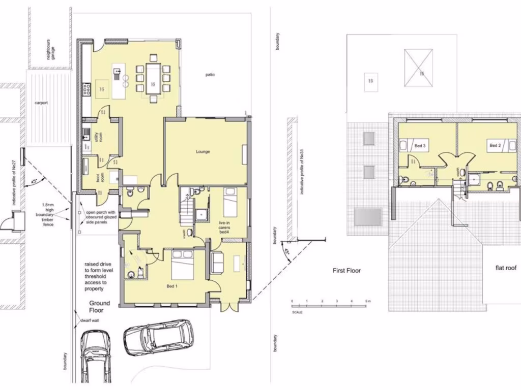
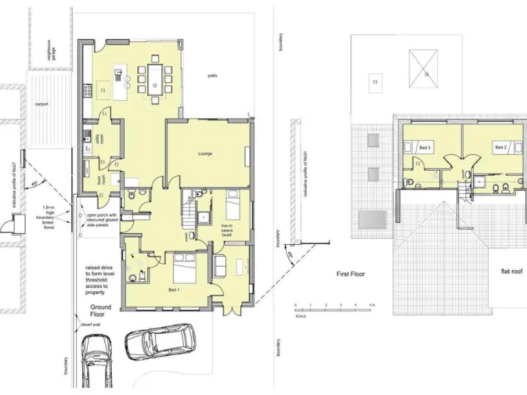
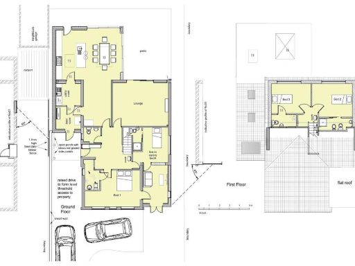
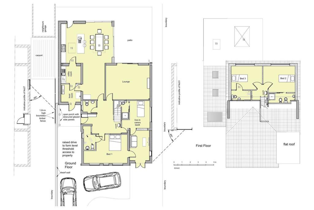
Set on the edge of Lower Almondsbury, this detached dormer bungalow enjoys an open outlook across an apple orchard and easy village access. The ground floor offers two double bedrooms, a spacious lounge with patio doors, and an extended kitchen/diner with granite worktops and fitted appliances — a comfortable family layout with generous garden space for play and entertaining.
Planning consent (P24/02584/HH) has been granted for a rear extension and remodelling, including linked self-contained accommodation and a sunny en-suite room. That consent represents clear scope to increase living space and value, ideal for families who want extra room or someone seeking a project to tailor the house to their needs.
Practical features include a single garage, off-street parking, UPVC double glazing and oil-fired central heating. Notable considerations are the oil boiler (not on a community supply) and above-average council tax; broadband and mobile signal are average in the area. The property is offered freehold with no flood risk reported.
Minutes’ walk from the village centre, the location suits family life — the village primary is Ofsted Outstanding and local amenities cover essentials. For commuters, the M4/M5 interchange and Cribbs Causeway are nearby, while Thornbury and Bristol offer wider services and leisure options.
3 bedroom semi-detached house for sale in Walnut Tree Close, Lower Almondsbury, BS32 — £519,000 • 3 bed • 3 bath • 1223 ft²
4 bedroom detached bungalow for sale in Knole Close, Lower Almondsbury, BS32 — £660,000 • 4 bed • 2 bath • 1650 ft²
4 bedroom detached bungalow for sale in Knole Close, Lower Almondsbury, BS32 — £949,950 • 4 bed • 2 bath • 1826 ft²
4 bedroom detached house for sale in Lower Court Road, Almondsbury, Bristol, Gloucestershire, BS32 — £850,000 • 4 bed • 2 bath • 2698 ft²
4 bedroom bungalow for sale in Gloucester Road, Almondsbury, BS32 — £775,000 • 4 bed • 2 bath • 1907 ft²
4 bedroom village house for sale in Sundays Hill, Almondsbury, South Gloucestershire, BS32 — £875,000 • 4 bed • 3 bath • 2184 ft²


























































