**Standout Features:**
- Beautifully presented Victorian period property with stone exterior
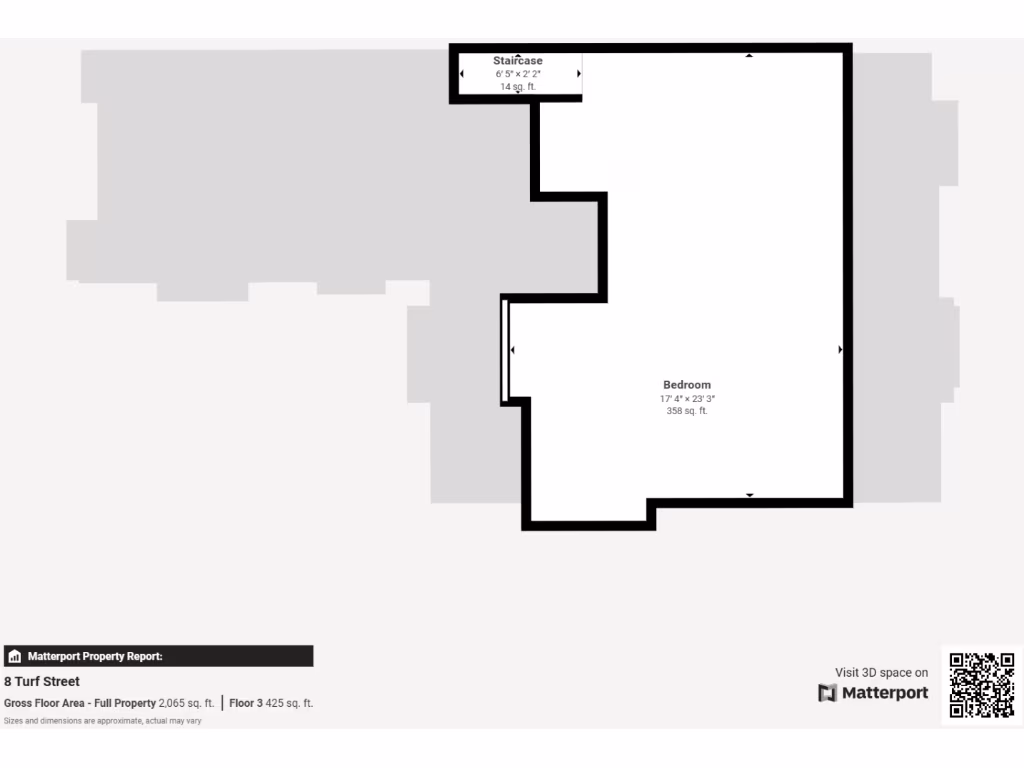
- Four bedrooms across three floors, including a spacious attic room
- Two reception rooms with log burner and natural light
- Modern kitchen diner leading to a generous rear garden with covered patio
- Partial electric underfloor heating
- Close proximity to Bodmin town center with convenient amenities
- Parking space to the front
**Concerns:**
- Property constructed before 1900, could require maintenance
- Crime rate is above average in the area
- Parking is limited to one space
**Summary Description:**
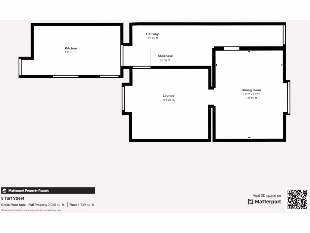
Welcome to this exquisitely presented Victorian terraced house on Turf Street, Bodmin. Offering a unique blend of period charm and modern convenience, this property features four comfortably sized bedrooms, including a delightful attic room filled with natural light, ideal for a home office or play area. The ground floor showcases two spacious reception rooms, one accentuated by a cozy log burner and patio doors that open to a covered seating area in the generous private garden—a perfect retreat for outdoor entertaining.
With a modern kitchen that serves as the heart of the home, complete with dining space, you'll love hosting family gatherings here. The property also includes two well-appointed bathrooms, one with an elegant freestanding bath, catering to family needs. Enjoy the added benefit of a convenient parking space along with fast broadband speeds, making this home not only functional but also well-suited for a modern family.
Positioned close to local amenities and good schools, this property presents a fantastic opportunity for first-time buyers or families looking for a charming home in a central urban area. While the area has an above-average crime rate and the property may require occasional maintenance due to its historical build, the unique character and spacious layout make it a standout choice. Don't miss your chance to call this delightful home yours; opportunities like this are rare and won't last long!
4 bedroom house for sale in Crinnicks Hill, BODMIN, Cornwall, PL31 — £250,000 • 4 bed • 2 bath • 528 ft²
3 bedroom end of terrace house for sale in 48 Lower Bore Street, Bodmin, Cornwall, PL31 — £175,000 • 3 bed • 1 bath • 1141 ft²
4 bedroom semi-detached house for sale in Berrycoombe Road, Bodmin, Cornwall, PL31 — £290,000 • 4 bed • 1 bath • 1464 ft²
3 bedroom end of terrace house for sale in 4 Harleigh Terrace, Bodmin, Cornwall, PL31 1BT, UK, PL31 — £310,000 • 3 bed • 1 bath • 753 ft²
3 bedroom terraced house for sale in 16a Crockwell Street, Bodmin, PL31 2DS, PL31 — £150,000 • 3 bed • 2 bath • 510 ft²
4 bedroom terraced house for sale in Town End, Bodmin, PL31 — £225,000 • 4 bed • 1 bath • 1271 ft²






























































































