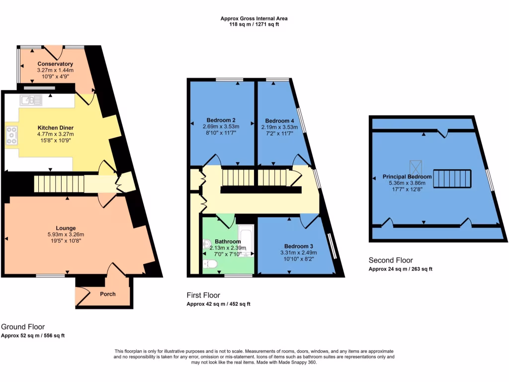
Spacious four-bedroom town home with parking and low-maintenance garden..
Stone Victorian terrace with character features and three-storey layout|Four bedrooms including second-floor room with Velux windows|Modern fitted kitchen with integrated dishwasher and bright conservatory access|Enclosed, low-maintenance rear garden with shed and rear gate|Off-street parking for two cars accessed via Tranquil Lane|Single family bathroom for four bedrooms — potential morning congestion|Granite walls likely uninsulated; energy improvements may be needed|Front flying freehold and unknown double-glazing install date
This traditional stone terraced house on Town End offers roomy family living across three floors. The ground floor features a well-proportioned sitting room with a gas fire and a bright conservatory/porch leading into a modern fitted kitchen with shaker-style units and an integrated dishwasher. A light-filled second-floor bedroom with Velux windows gives extra privacy for a teenager or guest.
Outside, the property provides useful practical benefits: an enclosed low-maintenance rear garden with shed, a tiered front patio, and off-street parking for two cars accessed via Tranquil Lane. The location sits close to Bodmin town centre and several good primary schools, making daily routines straightforward for families.
There are some important considerations: the house was built before 1900 with granite walls that are assumed uninsulated, and the glazing installation date is unknown — energy improvements may be needed. The property has a flying freehold to the front and a single family bathroom serving four bedrooms, both factors to note when planning future works or family use.
Sold freehold and offered with no onward chain, this home suits a family seeking character, space and practical parking in a convenient town-centre location, while accepting minor renovation or insulation projects to improve comfort and running costs.
3 bedroom end of terrace house for sale in 4 Harleigh Terrace, Bodmin, Cornwall, PL31 1BT, UK, PL31 — £310,000 • 3 bed • 1 bath • 753 ft²
3 bedroom terraced house for sale in St. Marys Road, Bodmin, Cornwall, PL31 — £170,000 • 3 bed • 1 bath • 706 ft²
4 bedroom terraced house for sale in Hillside Park, Bodmin, Cornwall, PL31 — £180,000 • 4 bed • 2 bath • 1120 ft²
3 bedroom terraced house for sale in Harleigh Terrace, Bodmin, Cornwall, PL31 — £295,000 • 3 bed • 2 bath
2 bedroom terraced house for sale in Flamank Park, Bodmin, Cornwall, PL31 — £195,000 • 2 bed • 1 bath • 882 ft²
2 bedroom end of terrace house for sale in Higher Bore Street, Bodmin, Cornwall, PL31 — £165,000 • 2 bed • 1 bath


















































































