PR7 2HU - 3 bedroom terraced house for sale in Walletts Road, Chorley…

View on Property Piper

3 bedroom terraced house for sale in Walletts Road, Chorley, PR7

Summary - 19 WALLETTS ROAD CHORLEY PR7 2HU

3 bed 1 bath Terraced

**Standout Features:**
- Spacious three-bedroom terraced home in a tranquil Chorley location.
- Open-plan kitchen/diner and versatile playroom/utility space.
- Cozy living room with a log burner and a large bay window.
- Generously-sized rear garden with patio area and detached double garage.
- Excellent transport links; within walking distance to local shops and schools.

**Concerns:**
- Leasehold tenure which may require attention regarding ground rent.
- Older structural characteristics typical of homes built between 1900-1929.

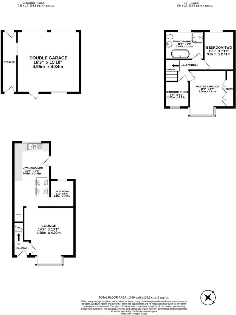
Discover your perfect first home in this charming three-bedroom terraced house nestled on a quiet street in Chorley. Spanning approximately 1,099 sq. ft., this well-maintained property boasts a cozy living room filled with natural light, complete with a lovely log burner and a modern open-plan kitchen/diner suitable for family gatherings. The flexible additional space off the kitchen can serve as a playroom, utility area, or home office, catering to your lifestyle needs.

Upstairs, you’ll find generously sized bedrooms, with the master offering integrated storage and a comprehensive four-piece family bathroom. Externally, enjoy a quaint front lawn, convenient on-street parking, and a spacious rear garden with patio, perfect for outdoor relaxation. With a prime location offering fantastic access to local amenities, schools, and transport links, this property is an excellent opportunity for first-time buyers eager to make their mark. Don’t miss out—early viewing is essential to secure this gem!

Property Details

Brochure Descriptions

Image Descriptions

Floorplan Description

Rooms

Textual Property Features

Detected Visual Features

EPC Details

Nearby Schools

Nearest Bars And Restaurants

,,,,}

Nearest General Shops

,,}

Nearest Grocery shops

,,}

Nearest Supermarkets

,,}

Nearest Religious buildings

,,}

Nearest Medical buildings

,,,}

Nearest Leisure Facilities

,,,,}

Nearest Tourist attractions

,,}

Nearest Train stations

,,,,}

Nearest Bus stations and stops

,,,,}

Nearest Hotels

,,}

Tags

Local Market Stats

Similar Properties

Meta

High Res Images

Compatible Images

Low res Images

Thumbnails

Raw Images

High Res Floorplan Images

Compatible Floorplan Images

Low res Floorplan Images

FloorplanImages Thumbnail

Raw Floorplan Images