PR6 0DY - 3 bedroom terraced house for sale in Nab Road, Chorley, PR6

View on Property Piper

3 bedroom terraced house for sale in Nab Road, Chorley, PR6

Summary - 1 NAB ROAD, CHORLEY PR6 0DY

3 bed 1 bath Terraced

**Standout Features:**
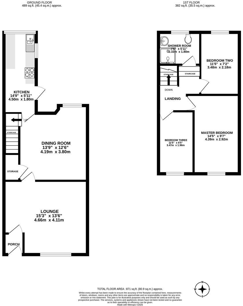
- Three bedrooms with integrated storage options.
- Spacious lounge and dining area suitable for family gatherings.
- Modern kitchen with dual-aspect windows and integrated appliances.
- Low-maintenance L-shaped garden, perfect for relaxation.
- Excellent on-street parking availability.
- Location in a quiet cul-de-sac with easy access to amenities and transport links.
- EPC Rating: C; approximately 871 sq. ft.

**Summary:**
Discover the perfect starter home in this charming three-bedroom mid-terrace property nestled in a tranquil cul-de-sac, just a stroll from Chorley town centre. This comfortable residence boasts a spacious lounge flooded with natural light, a welcoming dining area, and a modern kitchen that opens to a low-maintenance L-shaped garden, ideal for outdoor leisure. The upper floor features three well-sized bedrooms, offering cozy accommodations and integrated storage in one. With excellent commuting options via the M6 and M61 motorways, this home is positioned for both convenience and comfort.

While the property presents a wonderful opportunity for first-time buyers, the LEASEHOLD tenure and the average-sized rooms may appeal to those seeking an affordable entry into homeownership. The area is known for its rich community resources and proximity to reputable schools, making it an appealing choice for families. Given its attractive features and competitive pricing at £129,995, early viewing is recommended to secure this desirable home before it slips away!

Property Details

Brochure Descriptions

Image Descriptions

Floorplan Description

Rooms

Textual Property Features

Detected Visual Features

EPC Details

Nearby Schools

Nearest Bars And Restaurants

,,,,}

Nearest General Shops

,,}

Nearest Grocery shops

,,}

Nearest Supermarkets

,,}

Nearest Religious buildings

,,}

Nearest Medical buildings

,,,}

Nearest Leisure Facilities

,,,,}

Nearest Tourist attractions

,,}

Nearest Train stations

,,,,}

Nearest Bus stations and stops

,,,,}

Nearest Hotels

,,}

Tags

Local Market Stats

AirBnB Data

Similar Properties

Meta

High Res Images

Compatible Images

Low res Images

Thumbnails

Raw Images

High Res Floorplan Images

Compatible Floorplan Images

Low res Floorplan Images

FloorplanImages Thumbnail

Raw Floorplan Images