Comfortable city-centre retirement home with private patio and communal gardens.
Two-bedroom mid-terrace house for over-60s with long lease remaining
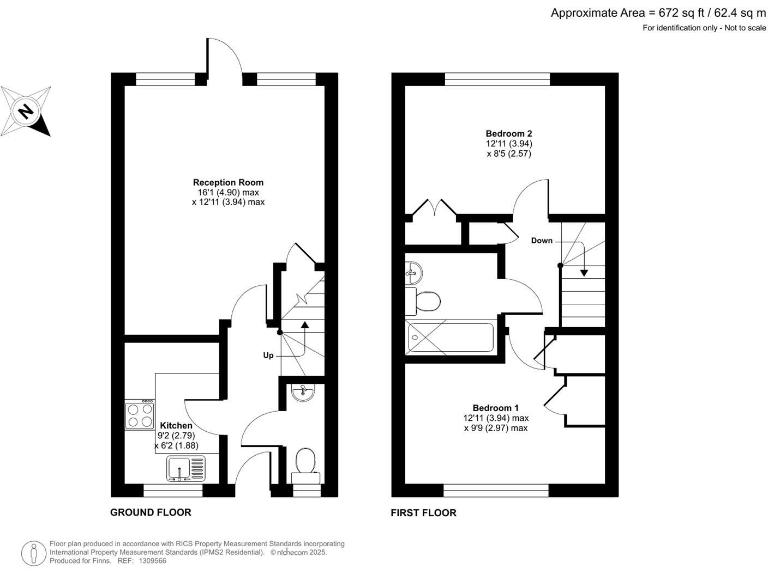
A practical two-bedroom mid-terrace arranged over two floors, designed for over-60s living within Canterbury’s city walls. The sitting room opens onto a private patio and directly into the communal, well-kept gardens — ideal for easy outdoor access and quiet relaxation. The development includes an on-site scheme manager, emergency pull-cord system, communal laundry and a bookable guest suite.
The house is heated by electric storage heaters and has double glazing; mains electricity is the main fuel. The property is offered with no forward chain and a long lease (circa 238 years remaining). Service charge covers garden maintenance and communal services — currently £3,436.84 annually (£343.07 pcm), with a small ground rent of £170 per year.
Buyers should note practical considerations: electric heating can mean higher running costs compared with gas; the area records a very high crime rate; and the property sits in a medium flood‑risk zone. The layout and communal support make this best suited to retired buyers seeking low‑maintenance, centrally located accommodation rather than those wanting extensive living‑cost savings or rural seclusion.
2 bedroom terraced house for sale in St. Peter's Grove, Canterbury, Kent, CT1 — £215,000 • 2 bed • 1 bath • 743 ft²
2 bedroom ground floor flat for sale in The Causeway, Canterbury, Kent, CT1 — £130,000 • 2 bed • 1 bath • 507 ft²
2 bedroom ground floor flat for sale in The Causeway, Canterbury, Kent, CT1 — £91,500 • 2 bed • 1 bath • 507 ft²
1 bedroom flat for sale in The Causeway, Canterbury, Kent, CT1 — £56,500 • 1 bed • 1 bath • 341 ft²
1 bedroom ground floor flat for sale in St. Radigund's Street, Canterbury, Kent, CT1 — £110,000 • 1 bed • 1 bath • 431 ft²
1 bedroom apartment for sale in Station Road West, Canterbury, Kent, CT2 — £100,000 • 1 bed • 1 bath • 421 ft²


















































