Characterful starter home near town centre, parking and good transport links.
Two spacious bedrooms with high ceilings and sash windows
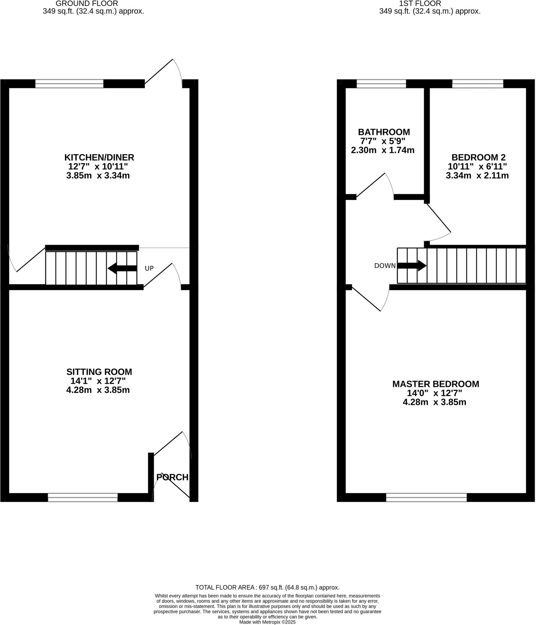
This well-presented two-bedroom Victorian end-terrace sits a short walk from Tyldesley town centre, offering straightforward, comfortable living for first-time buyers. High ceilings, sash windows and a feature log-burning fire give the lounge period character and a welcoming feel. The layout is traditional and easy to manage across approximately 697 sq ft.
The kitchen includes dining space and useful under-stairs storage, and the modern family bathroom serves two good-sized bedrooms upstairs. An enclosed rear yard provides low-maintenance outdoor space and double wooden gates give access to off-street parking on Blossom Street — a practical plus in this area.
Important practical points: the property is leasehold, so buyers should check lease length and any service charges. The house is of solid brick construction (typical of its 1900–1929 build) with no known cavity insulation, so purchasers should budget for potential insulation or energy-efficiency improvements. The wider area is classified as deprived, which may affect long-term resale values despite very low local crime and fast broadband.
Overall this home suits someone seeking an affordable, characterful starter home near good local amenities, schools and strong transport links. It’s ready to move into but buyers wanting the highest energy efficiency or long-term certainty on tenure should carry out targeted checks before exchange.
2 bedroom terraced house for sale in Shuttle Street, Tyldesley, Manchester, Greater Manchester, M29 8BG, M29 — £125,000 • 2 bed • 1 bath • 873 ft²
2 bedroom terraced house for sale in Union Street, Tyldesley, Manchester, M29 8AR, M29 — £160,000 • 2 bed • 1 bath • 1186 ft²
2 bedroom terraced house for sale in Astley Street, Tyldesley, Manchester, Greater Manchester, M29 8HG, M29 — £110,000 • 2 bed • 1 bath • 754 ft²
2 bedroom end of terrace house for sale in Lune Street, Tyldesley, Manchester, M29 — £185,000 • 2 bed • 1 bath • 776 ft²
2 bedroom terraced house for sale in Birch Street, Tyldesley, M29 — £130,000 • 2 bed • 1 bath • 786 ft²
2 bedroom end of terrace house for sale in Primrose Street North, Tyldesley, Manchester, Greater Manchester, M29 8BQ, M29 — £165,000 • 2 bed • 1 bath • 871 ft²


































































