### Standout Features:
- **Price**: £110,000
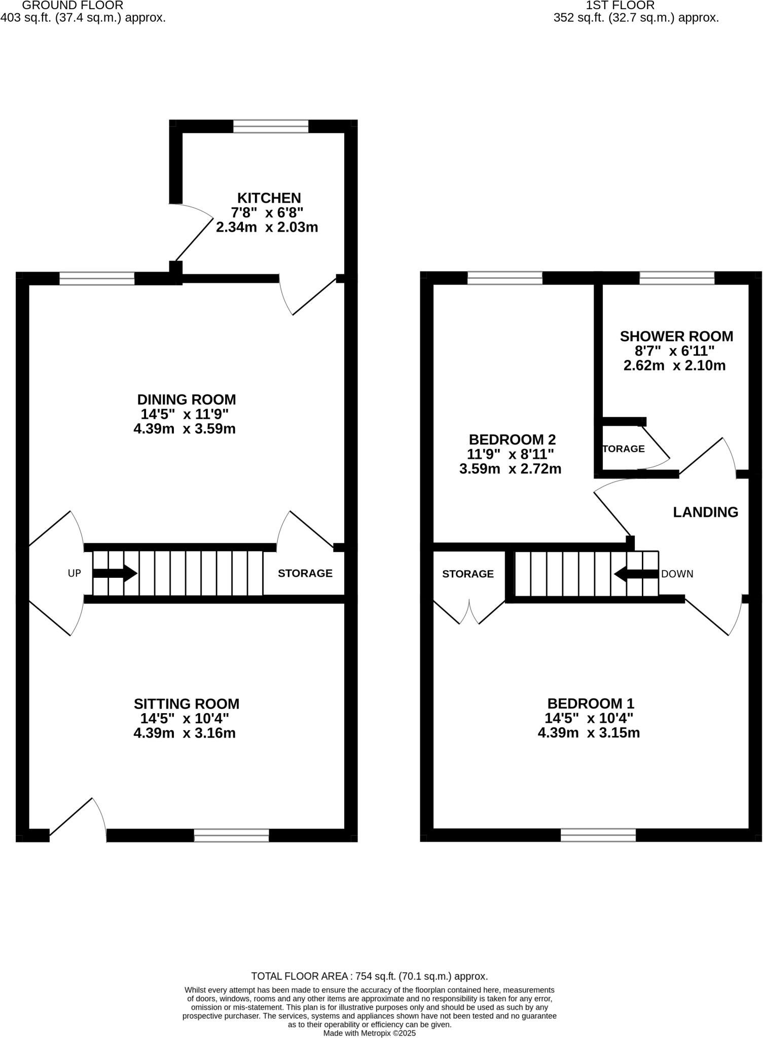
- **Size**: Average-sized, 754 sq ft
- **Type**: Terraced, two-bedroom Victorian property
- **Location**: Prime Tyldesley area with great transport links
- **Condition**: Chain-free sale, spacious dining room, and kitchen extension
- **Heating**: Mains gas boiler and radiators
- **Amenities**: Close to local shops, schools, and bus routes
### Summary:
Discover this charming two-bedroom mid-terrace home nestled in the heart of Tyldesley, offered without any onward chain. With an appealing Victorian façade, the property provides a cozy living room featuring a mid-century fireplace and the potential for modern upgrades. A spacious dining room with under-stair storage extends to a kitchen with access to the yard, making it perfect for small gatherings or future renovations.
Upstairs, enjoy two comfortable bedrooms and a shower room, creating an ideal setting for first-time buyers, families, or investors seeking rental potential in a vibrant community. The shared rear yard provides a bit of outdoor space for relaxation. With excellent mobile and broadband connectivity, along with nearby schools rated 'Good' and 'Outstanding,' this home is a valuable prospect. Early viewing is recommended to seize this opportunity—properties in this desirable area don't stay on the market for long!
2 bedroom terraced house for sale in Lemon Street, Tyldesley, Manchester, M29 8HT, M29 — £160,000 • 2 bed • 1 bath • 771 ft²
2 bedroom terraced house for sale in Brindle Street, Tyldesley, M29 — £130,000 • 2 bed • 1 bath • 647 ft²
2 bedroom end of terrace house for sale in Primrose Street North, Tyldesley, Manchester, Greater Manchester, M29 8BQ, M29 — £165,000 • 2 bed • 1 bath • 871 ft²
2 bedroom terraced house for sale in Shuttle Street, Tyldesley, Manchester, Greater Manchester, M29 8BG, M29 — £125,000 • 2 bed • 1 bath • 873 ft²
2 bedroom terraced house for sale in New Bank Street, Tyldesley, Manchester, Greater Manchester, M29 8DY, M29 — £150,000 • 2 bed • 1 bath • 766 ft²
2 bedroom terraced house for sale in Union Street, Tyldesley, Manchester, M29 8AR, M29 — £160,000 • 2 bed • 1 bath • 1186 ft²


















































