Refurbished character house with sea glimpses and west-facing garden.
Chain-free Victorian end-terrace, short walk to beach and town centre
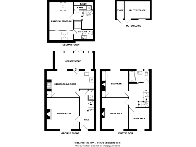
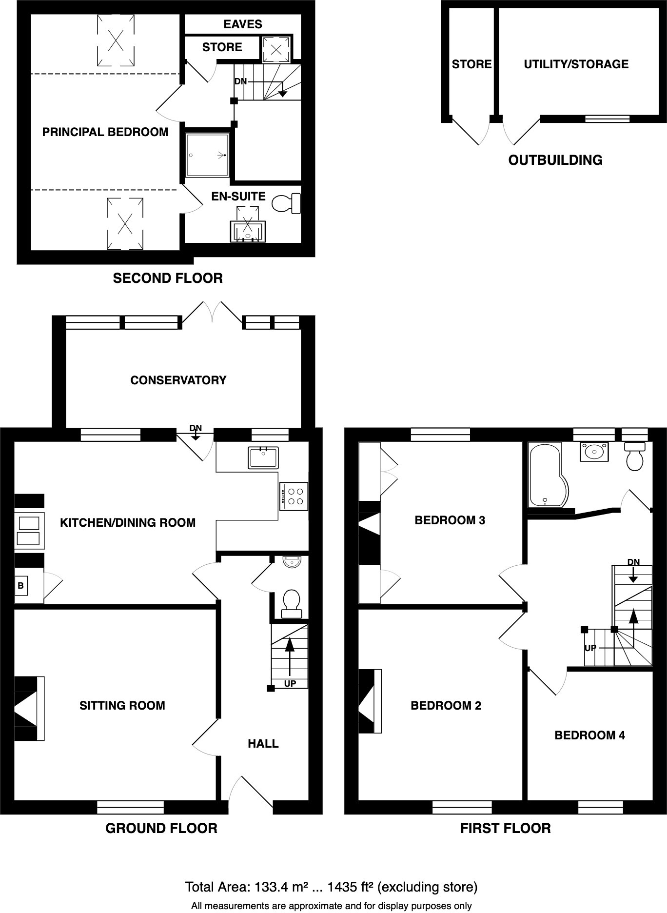
Set on an elevated street a short stroll from Sheringham’s beach and town centre, this sympathetically refurbished Victorian end-terrace blends period character with contemporary comforts. High ceilings, original cornices and a cosy open fireplace give the sitting room welcoming charm, while the bespoke kitchen/dining room and hardwood conservatory open to a west-facing, professionally landscaped garden for afternoon sun and easy entertaining.
The house provides flexible family accommodation across three floors: a principal bedroom suite in the loft with Velux roof lights and sea glimpses, three further bedrooms on the first floor and a well-appointed family bathroom. Practical additions include a downstairs cloakroom, an external outbuilding housing utility and storage, recent uPVC double glazing and a gas boiler with radiators.
This property will suit families seeking space near amenities and the coast, or buyers after a high-quality holiday-let in a sought-after coastal town. It is offered chain free for straightforward completion. Note the solid brick construction typical of its era means wall insulation is assumed absent; the Energy Performance Certificate is D. The plot is small and there is no on-site parking mentioned, so consider local parking arrangements if required.
Overall the home is ready to move into with tasteful coastal-inspired interiors and low-maintenance gardens, yet still offers opportunities to tailor insulation or further energy upgrades for long-term running-cost savings.
3 bedroom cottage for sale in Sheringham, NR26 — £325,000 • 3 bed • 1 bath • 1043 ft²
2 bedroom end of terrace house for sale in Sheringham, NR26 — £285,000 • 2 bed • 2 bath • 804 ft²
5 bedroom terraced house for sale in Sheringham, NR26 — £380,000 • 5 bed • 4 bath • 1747 ft²
4 bedroom semi-detached house for sale in Sheringham, NR26 — £240,000 • 4 bed • 1 bath • 1230 ft²
3 bedroom flat for sale in Sheringham, NR26 — £230,000 • 3 bed • 2 bath • 979 ft²
3 bedroom terraced house for sale in Sheringham, NR26 — £280,000 • 3 bed • 1 bath • 814 ft²






































































