Large-period fixer near Sheringham beach — substantial plot and strong renovation potential..
Victorian semi-detached with high ceilings and original period features
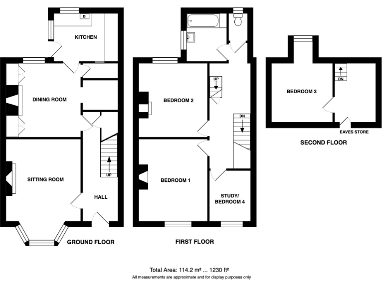
Four bedrooms over three floors, two reception rooms
Large wraparound plot offering privacy and outdoor potential
Short walk to Sheringham beach, train and bus stations
Complete renovation required; not mortgageable in current condition
EPC rating E; stone walls assumed without insulation
Cash buyers only; chain-free sale
Backs onto Tesco warehouse — private but limited outlook
A Victorian semi-detached house offering significant renovation potential just a short stroll from Sheringham beach, train and bus stations. Laid out over three floors, the property retains period features — sash windows, high ceilings, exposed floorboards and decorative fireplaces — giving scope to create a striking coastal family home or rental conversion.
The plot wraps around three sides and is unusually large for the street, providing private gardens and potential to reconfigure outside space. The house has two reception rooms, a kitchen, four bedrooms, bathroom and separate WC plus useful loft storage. Double glazing and mains gas central heating are already installed, which reduces some immediate costs.
Buyers should be clear this is a complete renovation project. The house needs comprehensive updating and is currently considered unlikely to be mortgageable; cash buyers only. Walls are stone/granite with no insulation (assumed), the EPC is currently rated E and parts of the interior require repair and modernization.
This is a strong proposition for builders, developers or skilled renovators seeking a period property close to coast and amenities. Chain-free sale, substantial plot and clear coastal demand in Sheringham mean a successful project could produce good long-term value — but budget realistically for refurbishment, energy improvements and finishes.
3 bedroom end of terrace house for sale in Sheringham, NR26 — £375,000 • 3 bed • 1 bath • 1160 ft²
2 bedroom end of terrace house for sale in Victoria Street, Sheringham, NR26 — £200,000 • 2 bed • 1 bath • 1046 ft²
4 bedroom detached house for sale in Alexandra Road, Sheringham, NR26 — £475,000 • 4 bed • 2 bath • 1804 ft²
4 bedroom apartment for sale in Sheringham, NR26 — £110,000 • 4 bed • 1 bath • 1148 ft²
5 bedroom end of terrace house for sale in Sheringham, NR26 — £525,000 • 5 bed • 3 bath • 1923 ft²
2 bedroom end of terrace house for sale in Sheringham, NR26 — £185,000 • 2 bed • 1 bath • 579 ft²






















































