Well-sized two-bedroom retirement apartment near Folkestone Harbour, parking and rail links..
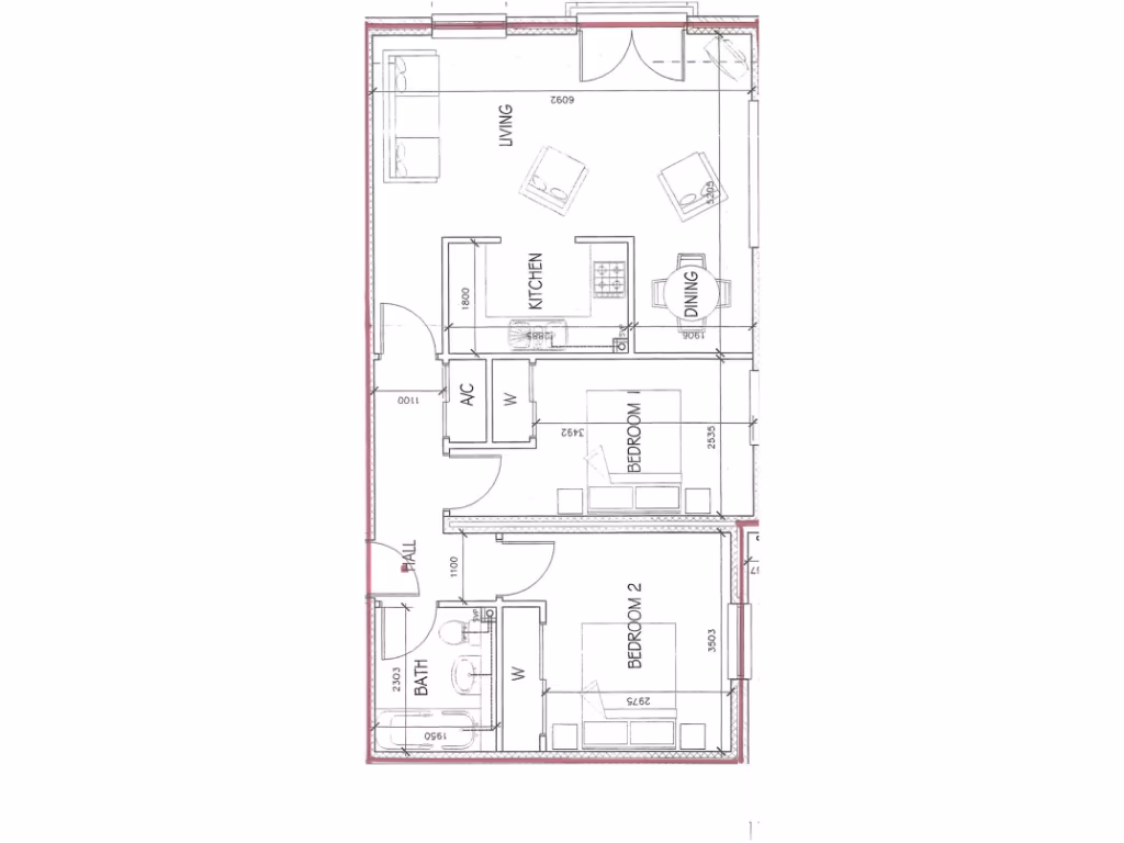
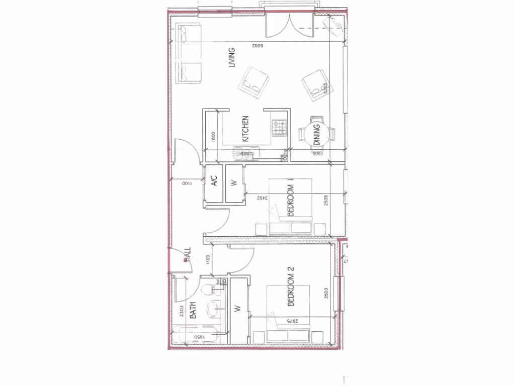
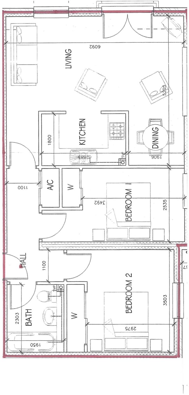
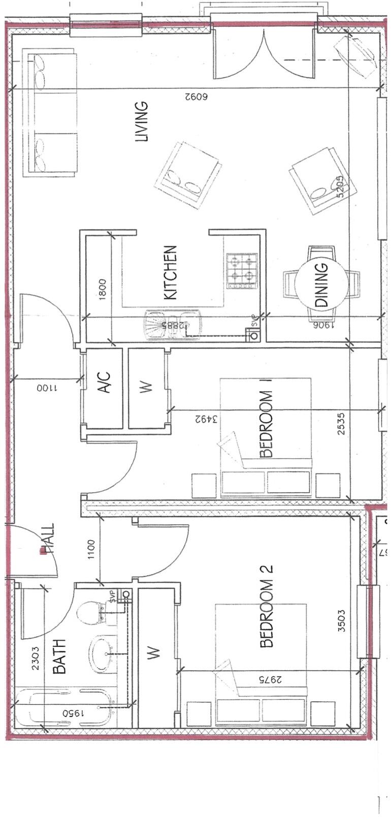
Two double bedrooms with fitted wardrobes
Large overall internal size around 1,243 sq ft
Third-floor flat with lift and off-street parking
Five-minute walk to Folkestone Harbour and beaches
Ten-minute walk to Folkestone Central rail station
Lease extended to 125 years on completion (was shorter)
Service charge approximately £1,654 per year
Medium flood risk; local area very deprived and high crime
This third-floor two-bedroom apartment in Bradstone Court offers spacious, single-level living close to Folkestone Harbour and town centre amenities. The bright living room and modern fitted kitchen provide an easy, low-effort home ideal for downsizers seeking proximity to shops, cafes and the seafront. Off-street parking and lift access add everyday convenience.
The building was constructed in 2005 and the flat feels modern and well-proportioned, with fitted wardrobes in both double bedrooms and a bathroom with bath and shower. The lease will be extended to 125 years on completion, and the 2023 service charge was £1,654 per year — important running costs to note.
Buyers should weigh local challenges alongside the positives: the wider area is classified as very deprived with a high local crime rate, and the property sits in a medium flood-risk zone. Broadband speeds are average. These factors may affect resale, insurance costs and personal comfort, so viewings are advised for a full assessment.
For purchasers prioritising location and convenience — especially downsizers wanting low-maintenance living near the sea and transport links — this apartment presents solid potential. It’s a practical, ready-to-move-into option with clear facts disclosed about costs and local risks.
2 bedroom apartment for sale in 101 Harbour Way, , Folkestone, CT20 — £155,000 • 2 bed • 1 bath • 584 ft²
1 bedroom retirement property for sale in Pleydell Gardens, Folkestone, CT20 — £70,000 • 1 bed • 1 bath • 539 ft²
2 bedroom retirement property for sale in Sandgate Road, Folkestone, Kent, CT20 — £120,000 • 2 bed • 1 bath • 503 ft²
2 bedroom flat for sale in The Bayle, Folkestone, Kent, CT20 — £100,000 • 2 bed • 1 bath • 520 ft²
3 bedroom flat for sale in Fernley Court , Folkestone, CT20 — £135,000 • 3 bed • 1 bath • 658 ft²
2 bedroom apartment for sale in Sandgate Road, Folkestone, CT20 — £349,500 • 2 bed • 2 bath • 1097 ft²


























