Top-floor flat with sea and town views from upper rooms
Flexible layout: 3 beds or 1 bed + two home offices
Separate fitted kitchen; white goods included
Secondary-glazed sash windows; Bedroom 2 fully double glazed
Small overall size (658 sq ft) — compact living space
Top floor only — no lift access
Area records very high crime and significant deprivation
Long lease (~920 years); low ground rent and below-average service charge
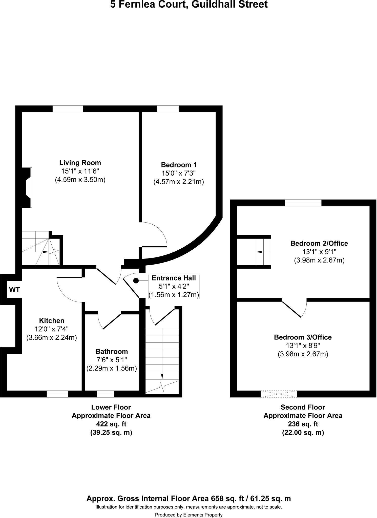
Bright and adaptable, this top-floor three-bedroom flat in central Folkestone offers flexible living and coastal views. The layout can suit a family, sharers or a professional couple wanting a one-bedroom home with two work-from-home offices. Secondary-glazed sash windows and a separate fitted kitchen with included white goods make it move-in ready.
The property benefits from excellent connectivity — Folkestone town centre, the Creative Quarter, Harbour Arm and high-speed rail to London are all within easy walking distance. Upper rooms enjoy far-reaching views across the town toward the sea, bringing light and a sense of space to the accommodation.
Practical points for buyers: the flat is on the top floor with no lift, overall size is small at 658 sq ft, and the surrounding area records very high crime and notable deprivation. The lease is very long (approx. 920 years); ground rent and service charge are low for the area, and council tax is in band A.
This is a pragmatic purchase for a first-time buyer or investor seeking a well-located, characterful coastal flat with clear potential to tailor the layout. It will particularly suit anyone prioritising location and transport links over gardens or lift access.



































































