Two-bed terraced investment with tenant in situ and scope to improve energy efficiency.
Two-bedroom mid-terrace, approx. 701 sq ft
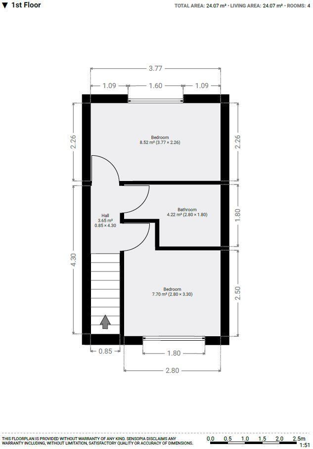
A compact two-bedroom mid-terrace offered with a sitting tenant and proven rental income. The ground floor provides open-plan living and a beech-fitted kitchen that leads to an enclosed rear yard; upstairs are two bedrooms and a family bathroom with bath and shower over. The property is double glazed, neutrally decorated and currently achieves £7,800pa, making it suited to a buy-to-let investor or a first-step buyer willing to take on a tenant.
Built c.1900–1929 with solid brick walls and internal insulation, the house is economical on council tax (Band A) but is heated by electric radiators and has an EPC rating of E — factors to budget for when assessing running costs. The area is classified as very deprived with higher local crime levels; proximity to Falsgrave and local amenities does offer good tenant demand and transport links.
The layout is efficient across approximately 701 sq ft: medium living/dining spaces, a modest kitchen and a decent rear yard. The property requires no immediate cosmetic works from the description, but the electric heating and EPC grade mean improvement to heating and insulation would both increase comfort and rental value. Sold freehold with excellent mobile and fast broadband speeds, it is a straightforward investment in a city location with clear potential if upgraded.
2 bedroom terraced house for sale in Ewart Street, Scarborough, North Yorkshire, YO12 — £125,000 • 2 bed • 1 bath • 764 ft²
2 bedroom semi-detached house for sale in 28a Seamer Road, YO12 — £110,000 • 2 bed • 1 bath • 419 ft²
2 bedroom terraced house for sale in Seamer Road, Scarborough, YO12 — £125,000 • 2 bed • 1 bath • 710 ft²
2 bedroom terraced house for sale in Mount Cottages, Seamer Road, Scarborough, YO12 — £137,000 • 2 bed • 1 bath • 780 ft²
2 bedroom terraced house for sale in St. Johns Road, Scarborough, YO12 — £139,995 • 2 bed • 1 bath • 926 ft²
2 bedroom terraced house for sale in Nelson Street, Scarborough, North Yorkshire, YO12 — £80,000 • 2 bed • 1 bath • 689 ft²


























































