Affordable, chain-free property with parking ideal for first-time buyers.
Chain-free freehold purchase with dedicated off-street parking
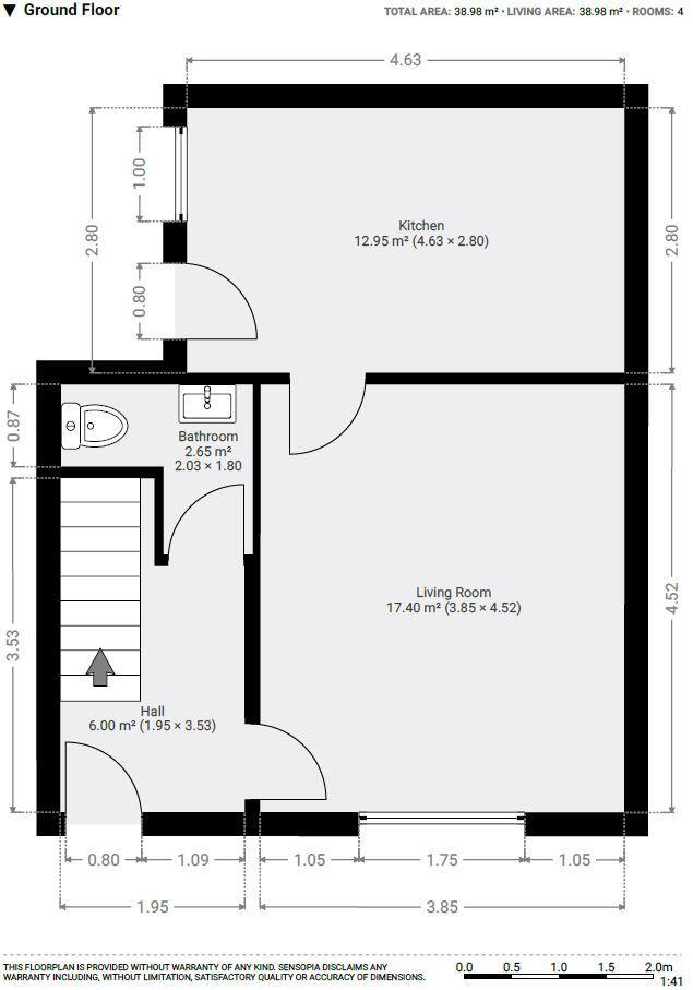
Compact 419 sq ft layout: lounge, galley kitchen, two bedrooms, bathroom
Double glazing fitted (post-2002) and internal wall insulation present
Very low council tax (Band A) reduces ongoing costs
Electric heating (boiler and radiators) — may be costly versus gas
Located in a very deprived area with higher-than-average local crime
Small overall size; best for a single buyer, couple, or buy-to-let
No flooding risk; decent plot with enclosed rear yard and parking
Set on Seamer Road, this compact two-bedroom freehold home offers chain-free purchase and dedicated off-street parking — a rare convenience for an affordable starter property. The layout is traditional and straightforward: lounge, galley kitchen with rear yard access, downstairs WC, two first-floor bedrooms and a family bathroom. Double glazing and neutral decoration mean the home is move-in ready in many rooms.
Practical running costs are a strength: very low council tax (Band A) and no flooding risk. Electric central heating with a boiler and radiators is already in place, and the solid brick walls have internal insulation. The property’s small footprint (419 sq ft) is best suited to a first-time buyer, single occupant or couple looking for an economical town base close to local amenities and good transport links.
Buyers should be aware of notable local challenges: the area records higher-than-average crime and ranks as very deprived, which can affect resale and renting prospects. The house is modest in size and will suit those prioritising affordability over space; there is evidence of later double glazing and recent neutral decoration but full modernisation or targeted maintenance may be needed over time.
Overall this is a pragmatic, budget-conscious purchase: chain free with parking and low running costs, offering a sensible starter home or a straightforward investment with sensible expectations about area factors and possible updating needs.
2 bedroom terraced house for sale in Seamer Road, Scarborough, North Yorkshire, YO12 — £110,000 • 2 bed • 1 bath • 782 ft²
2 bedroom terraced house for sale in Ewart Street, Scarborough, North Yorkshire, YO12 — £127,500 • 2 bed • 1 bath • 468 ft²
2 bedroom terraced house for sale in Trafalgar Terrace, Scarborough, YO12 — £120,000 • 2 bed • 1 bath • 667 ft²
2 bedroom terraced house for sale in West Parade Road, Scarborough, YO12 — £190,000 • 2 bed • 1 bath • 646 ft²
2 bedroom terraced house for sale in Rosebery Avenue, Scarborough, YO12 — £119,950 • 2 bed • 1 bath • 597 ft²
2 bedroom terraced house for sale in 30 Seamer Road, YO12 — £95,000 • 2 bed • 1 bath • 701 ft²






















































































