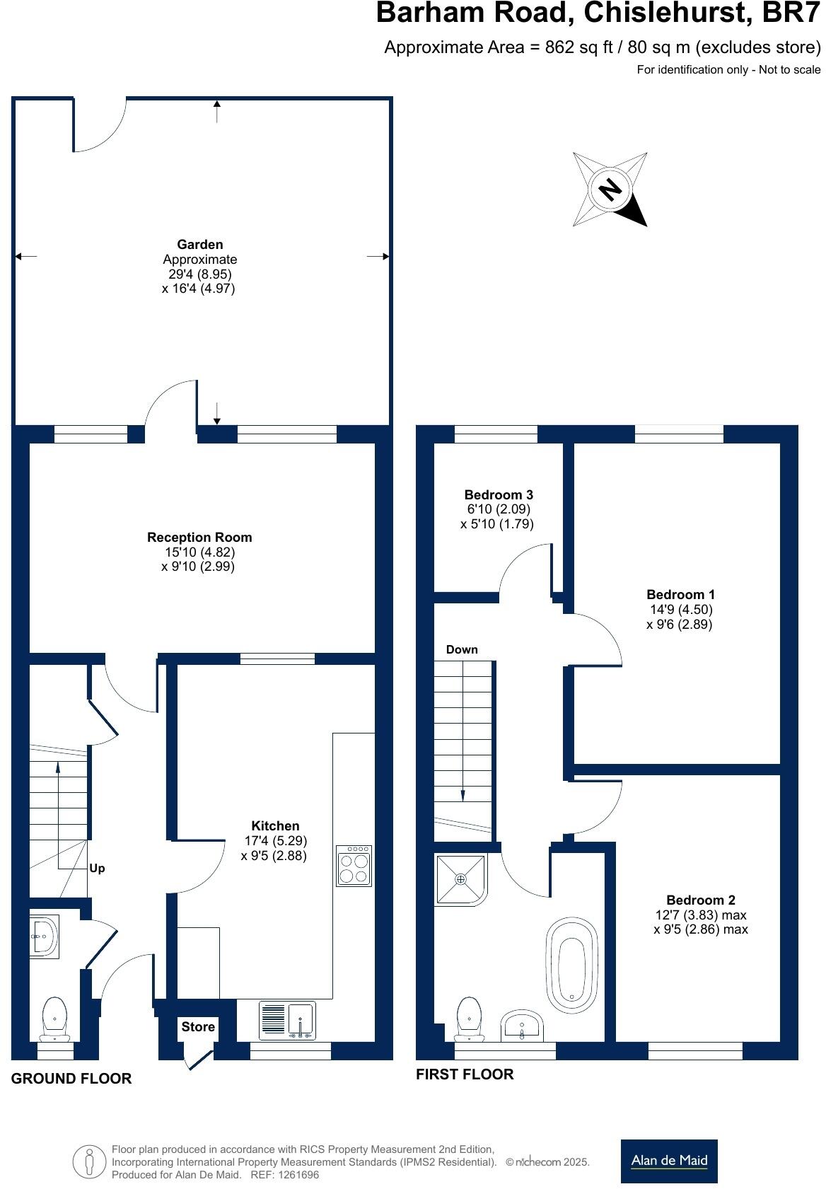
**Standout Features:**
- Charming 1960s terraced home located on Barham Road, Chislehurst.
- Three well-sized bedrooms and a four-piece bathroom suite.
- Functional kitchen with dining space and fitted appliances.
- Bright, spacious reception room leading to a private garden.
- Low crime area, within a desirable neighborhood for families.
- Close to multiple highly-rated primary schools.
- Freehold property with potential for personal touches or renovations.
**Concise Summary:**
Discover this delightful 3-bedroom terraced house on Barham Road, Chislehurst, perfect for families seeking comfort and convenience. Spanning 862 sq ft, the layout features a spacious kitchen ideal for dining, a cozy reception room with large windows, and a manageable garden perfect for outdoor entertaining. The first floor hosts three inviting bedrooms alongside a four-piece bathroom, catering to family needs with ease.
Located in a quiet and affluent area, this home falls within easy reach of multiple well-rated primary schools, making it an excellent choice for families. With a guide price of £425,000 - £450,000, this property offers the potential for personal touches while promising a welcoming and secure environment. Don't miss your chance—viewings are essential as this attractive offering won't last long in the current market!
 3 bedroom terraced house for sale in Cranmore Road, Chislehurst, BR7 — £595,000 • 3 bed • 1 bath • 1313 ft²
 3 bedroom terraced house for sale in Cranmore Road, Chislehurst, BR7 — £595,000 • 3 bed • 1 bath • 1313 ft² 3 bedroom semi-detached house for sale in Holmdale Road, Chislehurst, BR7 — £575,000 • 3 bed • 1 bath • 784 ft²
 3 bedroom semi-detached house for sale in Holmdale Road, Chislehurst, BR7 — £575,000 • 3 bed • 1 bath • 784 ft² 3 bedroom terraced house for sale in Cranmore Road, Chislehurst, BR7 — £550,000 • 3 bed • 1 bath • 1173 ft²
 3 bedroom terraced house for sale in Cranmore Road, Chislehurst, BR7 — £550,000 • 3 bed • 1 bath • 1173 ft² 5 bedroom end of terrace house for sale in Albyfield, Bromley, BR1 — £825,000 • 5 bed • 2 bath • 1632 ft²
 5 bedroom end of terrace house for sale in Albyfield, Bromley, BR1 — £825,000 • 5 bed • 2 bath • 1632 ft² 3 bedroom terraced house for sale in Invicta Close, Chislehurst, BR7 — £500,000 • 3 bed • 1 bath • 1004 ft²
 3 bedroom terraced house for sale in Invicta Close, Chislehurst, BR7 — £500,000 • 3 bed • 1 bath • 1004 ft² 3 bedroom house for sale in Slades Drive, Chislehurst, BR7 — £575,000 • 3 bed • 1 bath • 1011 ft²
 3 bedroom house for sale in Slades Drive, Chislehurst, BR7 — £575,000 • 3 bed • 1 bath • 1011 ft²






























































