Quiet cul‑de‑sac living with easy access to shops and coastal amenities.
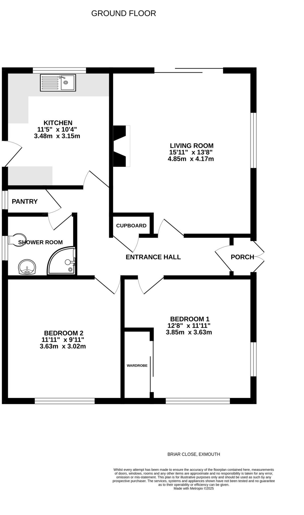
Two double bedrooms with built‑in wardrobes in the principal room
Southerly‑facing, level rear garden with decking and patio areas
Detached garage (18' x 9') plus driveway parking
Gas combi boiler heating and uPVC double glazing throughout
Modern fitted shower room; walk‑in pantry with WC plumbing
Insulated, partly boarded loft — conversion possible with permissions
Modest overall size (approx. 807 sq ft) — suitable for downsizers
Freehold and NO ONWARD CHAIN; services not tested by seller
Comfortable, single‑storey living in a quiet cul‑de‑sac just a short walk from shops and services. This detached 1950s‑1960s bungalow offers two double bedrooms, a dual‑aspect living room with patio doors and a level, southerly‑facing rear garden ideal for outdoor sitting and easy maintenance. The property is offered freehold and with no onward chain, making it a straightforward move for downsizers or those seeking a low‑step home.
Practical features include gas central heating (combi boiler), uPVC double glazing, a modern fitted shower room and driveway parking leading to an 18' detached garage. The loft is insulated and partly boarded and, subject to any required permissions, could be converted to provide extra accommodation or storage. Internal footprint is modest (about 807 sq ft) and well suited to two‑person living.
The bungalow sits in an affluent, low‑crime area with excellent mobile and fast broadband speeds, and easy access to three supermarkets, bus stops and a post office. Council Tax band C is affordable for the location. Buyers should note the mid‑20th century construction date and that some updating may be desired to personalise the home. Services, fixtures and fittings have not been tested — prospective purchasers should verify working order and any desired improvements.
2 bedroom detached bungalow for sale in Crossingfields Drive, Exmouth, EX8 — £425,000 • 2 bed • 1 bath • 883 ft²
2 bedroom semi-detached bungalow for sale in Bradford Close, Exmouth, EX8 — £279,950 • 2 bed • 1 bath • 463 ft²
2 bedroom detached bungalow for sale in Elmfield Crescent, Exmouth, EX8 3BL, EX8 — £350,000 • 2 bed • 1 bath • 689 ft²
2 bedroom semi-detached bungalow for sale in Ash Grove, Exmouth, EX8 3BN, EX8 — £309,950 • 2 bed • 1 bath • 538 ft²
3 bedroom detached bungalow for sale in Brixington Lane, Exmouth, EX8 — £359,950 • 3 bed • 1 bath • 969 ft²
2 bedroom semi-detached bungalow for sale in Sylvan Close, Exmouth, EX8 — £289,950 • 2 bed • 1 bath • 605 ft²














































