Low-maintenance single-storey home with garage and driveway parking.
End-of-cul-de-sac location, quiet and convenient
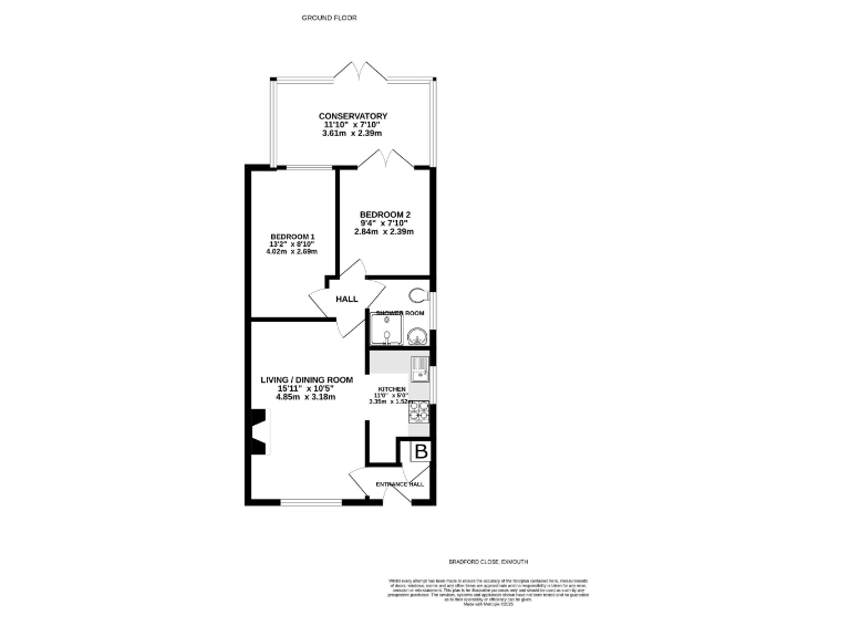
Set at the end of a quiet cul-de-sac, this two-bedroom semi-detached bungalow offers low-maintenance, single‑storey living ideal for downsizers or those seeking quieter streets. The living/dining room opens to a uPVC conservatory that extends the usable space and overlooks a shingle, easy‑care garden.
Practical features include gas central heating from a combi boiler, double glazing, driveway parking for several cars and a detached garage with power and light. The modern shower room has fully tiled walls and underfloor heating, while useful storage sits in the entrance porch with loft access in bedroom two.
The bungalow is compact (c.463 sq ft) and sits on a small plot, so buyers should expect limited internal living space and modest garden room. Constructed in the late 20th century, the property will suit someone wanting a tidy, move‑in option with scope to update kitchen and décor to personal taste.
Sold freehold and offered with no onward chain, this home is convenient for local shops, a doctors surgery, pharmacy and bus routes. Interested buyers should note services and fixtures have not been tested; a survey is recommended to confirm condition and running order.
2 bedroom detached bungalow for sale in Briar Close, Exmouth, EX8 — £345,000 • 2 bed • 1 bath • 807 ft²
2 bedroom semi-detached bungalow for sale in Sylvan Close, Exmouth, EX8 — £289,950 • 2 bed • 1 bath • 605 ft²
2 bedroom detached bungalow for sale in Crossingfields Drive, Exmouth, EX8 — £425,000 • 2 bed • 1 bath • 883 ft²
2 bedroom detached house for sale in Essington Close, Exmouth, EX8 4QY, EX8 — £350,000 • 2 bed • 1 bath • 651 ft²
2 bedroom semi-detached bungalow for sale in Ash Grove, Exmouth, EX8 3BN, EX8 — £309,950 • 2 bed • 1 bath • 538 ft²
2 bedroom bungalow for sale in The Marles, Exmouth, EX8 — £345,000 • 2 bed • 1 bath • 673 ft²


















































