Low-maintenance single-storey home with garage and south-facing garden.
- South-facing enclosed rear garden with lawn and patio
- Detached garage plus private driveway for off-street parking
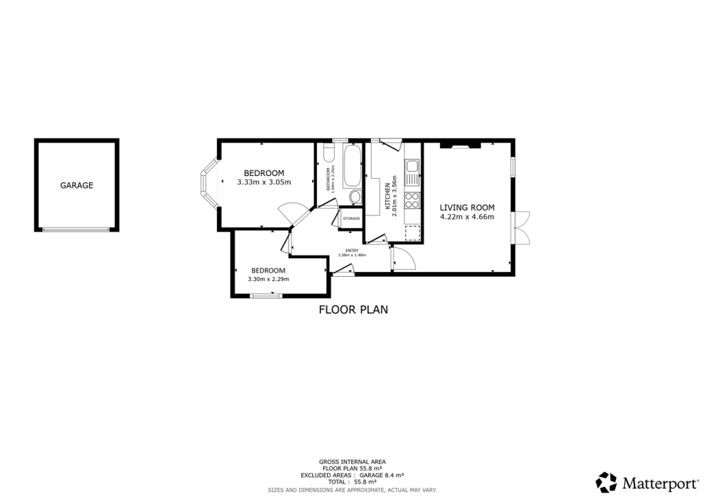
- Single-storey layout: two bedrooms, ideal for downsizers
- Compact overall size (~600 sq ft); limited internal space
- Kitchen is modern but narrow; layout constraints likely
- Freehold, mains gas heating, double glazing (install date unknown)
- Tidy appearance but likely requires cosmetic updating
- Very cheap council tax; no flood risk
This semi-detached bungalow in Dunscroft offers straightforward, single-storey living ideal for downsizers or buy-to-let buyers seeking low-maintenance accommodation. The lounge benefits from a bay window and the kitchen opens directly to a south-facing rear garden with lawn and patio, providing pleasant outdoor space. A detached garage and private driveway deliver secure storage and off-street parking.
At around 600 sq ft the layout is compact: two bedrooms and a single bathroom serve the home comfortably but space is limited. The kitchen is a modern galley-style fit but is narrow, so buyers should expect some layout constraints. The property appears tidy yet will likely benefit from cosmetic updating in places.
Practically, the bungalow is freehold, built in the early 1990s with cavity walls and double glazing (install dates unknown). Heating is mains gas via boiler and radiators; there is no flood risk. Local shops, schools and transport links are within easy reach, with the A18/M18 providing quick road access to Doncaster and beyond.
This house suits a buyer wanting easy single-level living, a small family, or an investor looking for a manageable rental with scope for light refurbishment. Note the modest overall size and narrower kitchen when assessing whether this home meets longer-term space needs.
2 bedroom semi-detached bungalow for sale in Roxby Close, Bessacarr, Doncaster, DN4 — £185,000 • 2 bed • 1 bath • 556 ft²
3 bedroom bungalow for sale in Balmoral Road, Dunscroft, Doncaster, DN7 — £195,000 • 3 bed • 1 bath • 868 ft²
2 bedroom semi-detached bungalow for sale in Lindsey Close, Bessacarr, Doncaster, DN4 — £155,000 • 2 bed • 1 bath • 510 ft²
2 bedroom bungalow for sale in Pinehall Road, Barnby Dun, Doncaster, DN3 — £200,000 • 2 bed • 1 bath • 646 ft²
1 bedroom terraced bungalow for sale in 7 Shenley Close, Doncaster, South Yorkshire, DN7 — £110,000 • 1 bed • 1 bath • 383 ft²
2 bedroom detached bungalow for sale in Newhall Road, Kirk Sandall, Doncaster, DN3 — £189,500 • 2 bed • 1 bath • 513 ft²






























































