Well-presented two-bedroom terrace — ideal first-time buy with garden and modern kitchen.
Freehold Victorian mid-terrace with bay window and forecourt
Two double bedrooms with built-in wardrobes, plus loft conversion roof lights
Stylish fitted kitchen, modern presentation throughout
Small, landscaped rear garden — low maintenance but limited size
Double glazing (installed post-2002) and mains gas central heating
Fast broadband; cheap council tax; on-street parking outside
Local area: deprived classification, constrained renters — affects marketability
Cavity walls assumed uninsulated; consider insulation/energy improvement works
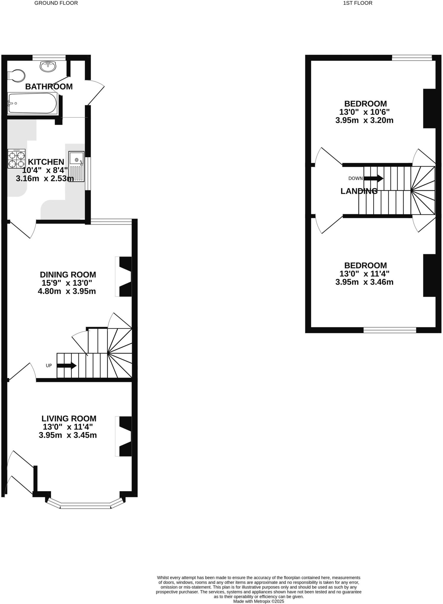
This well-presented bay-and-forecourt mid-terrace offers an accessible step onto the property ladder in Copnor. Finished to a modern standard inside, the house features two double bedrooms, a light-filled living room with bay window, a separate dining room and a stylish fitted kitchen — all arranged over a compact, efficient footprint. The property is freehold and benefits from fast broadband and mains gas central heating, practical for everyday family life or rental use.
Outside, a small but thoughtfully landscaped rear garden provides a low-maintenance outdoor space for summer sitting and entertaining. There is a small walled forecourt to the front and on-street parking immediately outside. A loft conversion is visible from the roof lights, offering potential extra space (subject to confirmation of permissions and internal access).
Notable positives include modern fittings, double glazing installed after 2002, cheap council tax, and proximity to several primary and secondary schools rated Good. The house is well suited to first-time buyers or those seeking a tidy, ready-to-move-in mid-terrace with good rental/resale prospects in a city location.
Buyers should be aware of material considerations: the property sits in a more deprived local area with average crime and a local market dominated by constrained renters, which may affect long-term resale tone. The external walls are assumed to be uninsulated cavity construction and may require insulation work. The plot is small, so outdoor space is limited; a full inspection is advised to confirm condition, any works carried out to the loft conversion, and to assess services and structure.
 3 bedroom terraced house for sale in Copnor Road, Portsmouth, PO3 — £310,000 • 3 bed • 1 bath • 877 ft²
 3 bedroom terraced house for sale in Copnor Road, Portsmouth, PO3 — £310,000 • 3 bed • 1 bath • 877 ft² 2 bedroom terraced house for sale in Aylesbury Road, Portsmouth, Hampshire, PO2 — £220,000 • 2 bed • 1 bath • 827 ft²
 2 bedroom terraced house for sale in Aylesbury Road, Portsmouth, Hampshire, PO2 — £220,000 • 2 bed • 1 bath • 827 ft² 2 bedroom terraced house for sale in Landguard Road, Southsea, PO4 — £250,000 • 2 bed • 1 bath • 668 ft²
 2 bedroom terraced house for sale in Landguard Road, Southsea, PO4 — £250,000 • 2 bed • 1 bath • 668 ft² 2 bedroom terraced house for sale in Eastfield Road, Southsea, PO4 — £250,000 • 2 bed • 1 bath • 600 ft²
 2 bedroom terraced house for sale in Eastfield Road, Southsea, PO4 — £250,000 • 2 bed • 1 bath • 600 ft² 2 bedroom terraced house for sale in Percy Road, Southsea, PO4 — £260,000 • 2 bed • 1 bath • 721 ft²
 2 bedroom terraced house for sale in Percy Road, Southsea, PO4 — £260,000 • 2 bed • 1 bath • 721 ft² 2 bedroom terraced house for sale in Dartmouth Road, Portsmouth, Hampshire, PO3 — £250,000 • 2 bed • 1 bath • 811 ft²
 2 bedroom terraced house for sale in Dartmouth Road, Portsmouth, Hampshire, PO3 — £250,000 • 2 bed • 1 bath • 811 ft²






























































































































