Chain-free newly refurbished house near fast commuter links into The City.
Three well-proportioned bedrooms and one family bathroom
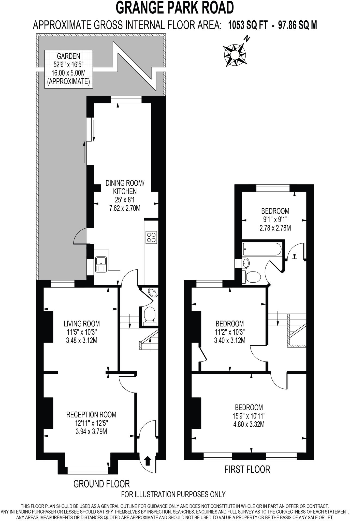
A newly refurbished mid-terrace with 1,053 sq ft of flexible family space, finished in neutral tones and period details. The layout offers three well-proportioned bedrooms, a through lounge and a kitchen with room for a dining table that opens onto a small, easy‑maintain garden — a practical setup for everyday family life and entertaining.
The house is chain free and sits close to Thornton Heath station (around a seven‑minute walk), providing fast commuter links into The City. Local amenities, parks such as Grangewood Park, and a mix of primary and secondary schools are all within easy reach, making the location appealing to families and commuters.
Buyers should note a few material points: the EPC is rated E, the property’s solid brick construction likely lacks cavity insulation, and there is a single bathroom serving three bedrooms. Tenure details are not provided. These factors affect running costs and potential improvement work, though the recent refurbishment means many visible finishes are new.
Overall, this is a spacious, characterful family home in a well‑connected area. It suits buyers seeking a move‑in ready house with scope to raise energy efficiency and personalise over time.
3 bedroom terraced house for sale in Grange Park Road, Thornton Heath, CR7 — £600,000 • 3 bed • 2 bath • 1069 ft²
3 bedroom terraced house for sale in Penrith Road, Thornton Heath, CR7 — £475,000 • 3 bed • 1 bath • 1021 ft²
3 bedroom terraced house for sale in Mersham Road, Thornton Heath, Surrey, CR7 — £450,000 • 3 bed • 1 bath • 1203 ft²
3 bedroom terraced house for sale in Hythe Road, Thornton Heath, Surrey, CR7 — £425,000 • 3 bed • 1 bath • 866 ft²
3 bedroom terraced house for sale in Grange Park Road, Thornton Heath, CR7 — £450,000 • 3 bed • 2 bath • 1057 ft²
3 bedroom terraced house for sale in Woodville Road, Thornton Heath, CR7 — £530,000 • 3 bed • 1 bath • 1206 ft²










































































