Spacious light-filled rooms with private rear garden and excellent connections.
Freehold Victorian mid-terrace with period bay window features
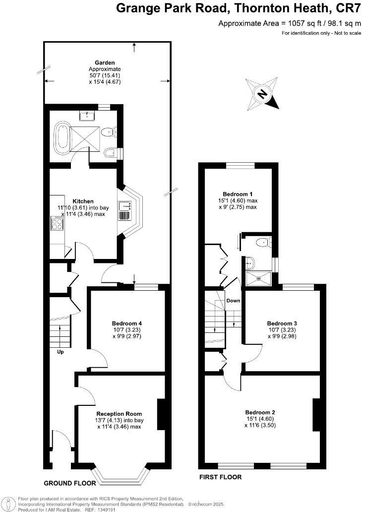
This attractive Victorian mid-terrace on Grange Park Road offers comfortable family living across two floors. The bay-front reception room and period features blend with modern kitchen and two bathrooms, providing move-in-ready accommodation for growing households. The generous light-filled rooms and private rear garden make daily life and entertaining straightforward.
Practical benefits include freehold tenure, mains gas central heating with boiler and radiators, double glazing, fast broadband and excellent mobile signal — helpful for commuters and home workers. The property’s 1,057 sq ft footprint provides flexible space for home offices or children's rooms while retaining original character in principal reception areas.
Buyers should note the urban plot is compact and the garden is small compared with detached alternatives. The local area scores higher on deprivation and recorded crime is above average, which may affect some buyers' preferences. Walls are solid brick with assumed no cavity insulation and the glazing install date is unknown; further improvements may be required to boost thermal efficiency.
This house will suit families seeking a characterful, ready-to-live-in home close to schools, shops and transport links, with scope for targeted upgrades. A viewing is recommended to confirm condition and assess any potential to extend or retrofit insulation, subject to planning.
3 bedroom terraced house for sale in Grange Park Road, Thornton Heath, CR7 — £475,000 • 3 bed • 1 bath • 1128 ft²
3 bedroom terraced house for sale in Northwood Road, Thornton Heath, CR7 — £475,000 • 3 bed • 2 bath • 1038 ft²
3 bedroom terraced house for sale in Parchmore Road, Thornton Heath, CR7 — £475,000 • 3 bed • 2 bath • 1461 ft²
3 bedroom terraced house for sale in Grange Park Road, Thornton Heath, CR7 — £600,000 • 3 bed • 2 bath • 1069 ft²
3 bedroom terraced house for sale in Stuart Road, Thornton Heath, CR7 — £475,000 • 3 bed • 2 bath • 1272 ft²
3 bedroom terraced house for sale in Penrith Road, Thornton Heath, CR7 — £475,000 • 3 bed • 1 bath • 1021 ft²


































































































