Quiet cul-de-sac townhouse near Whitehall Park and Archway station — ideal for families.
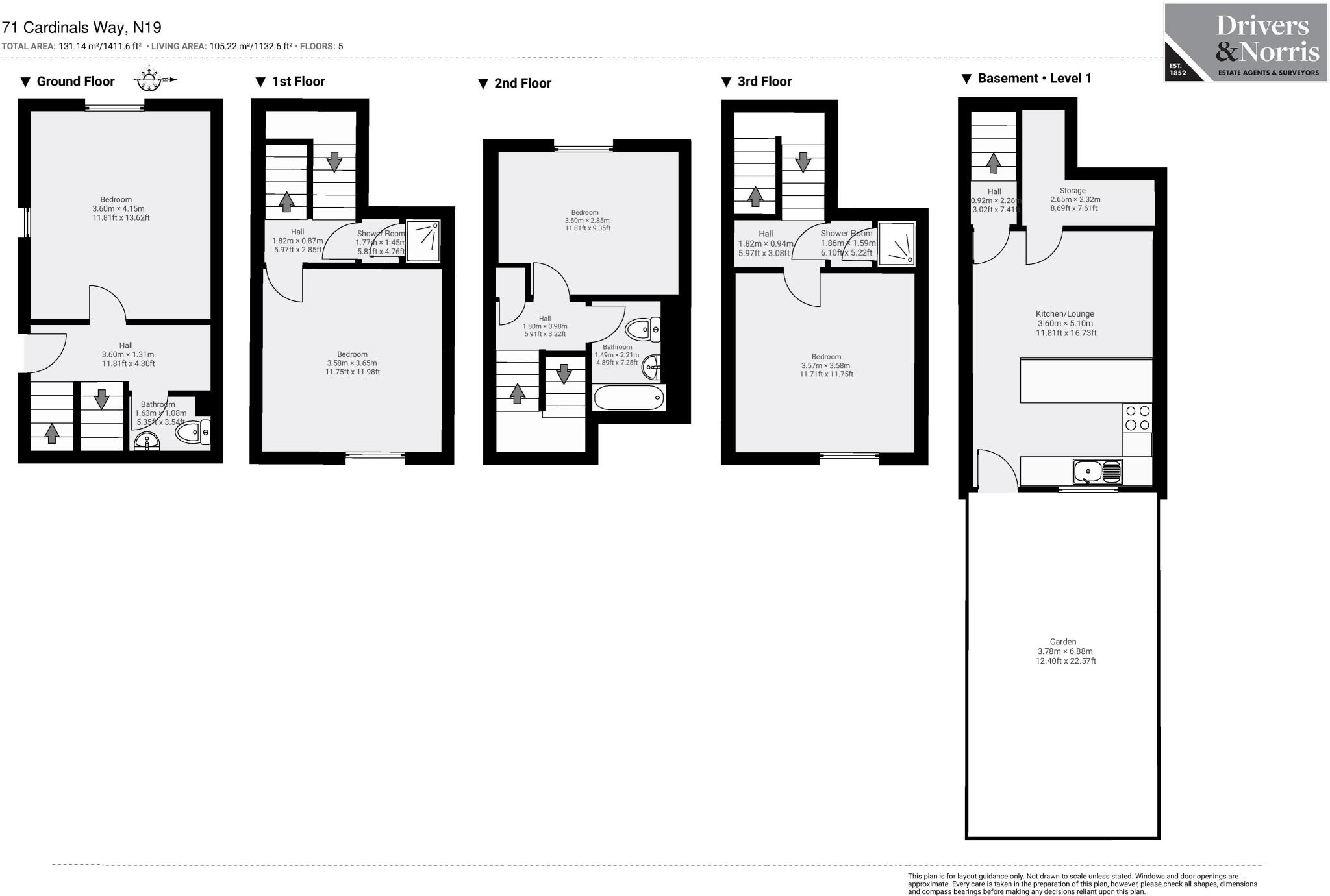
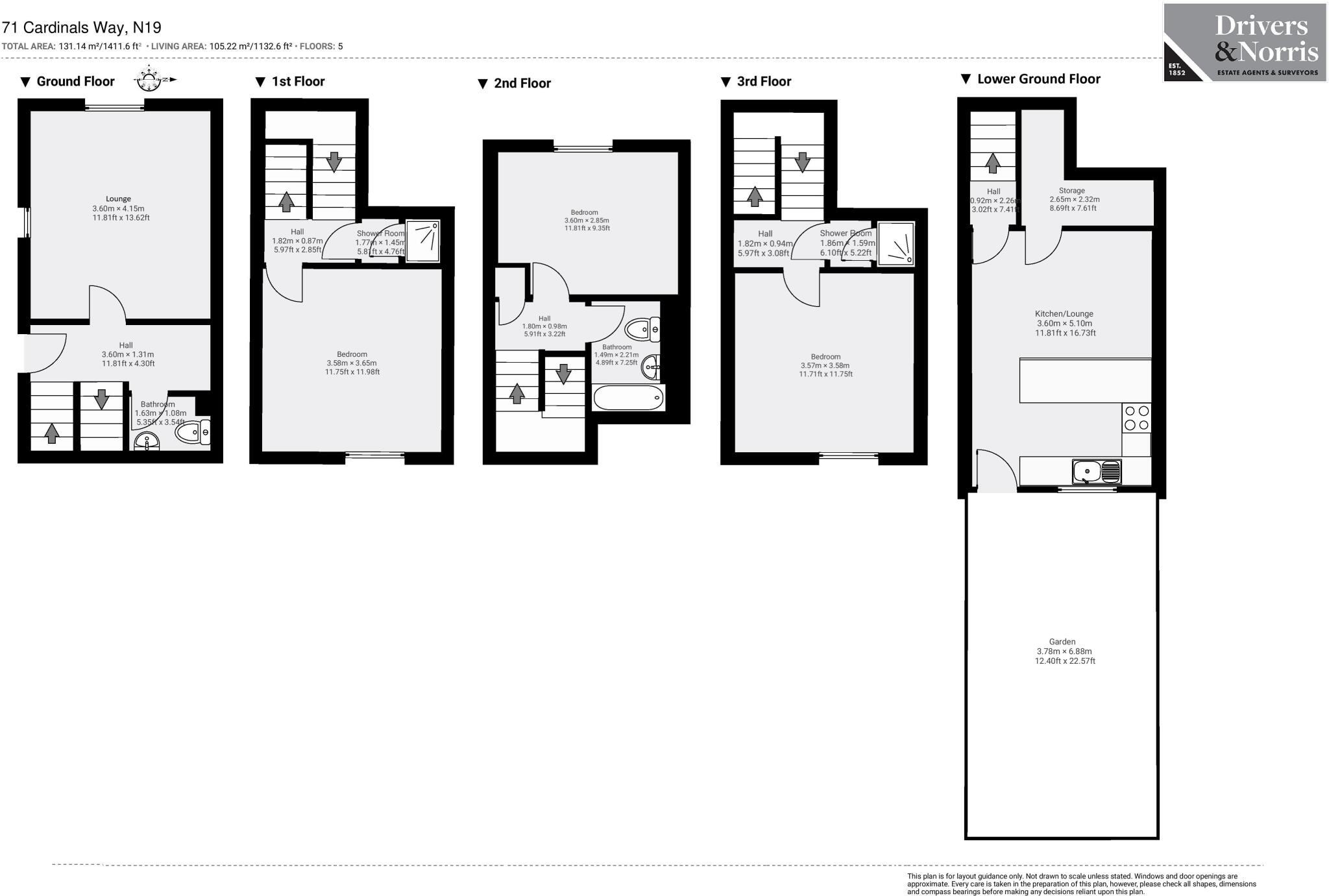
Chain-free three double bedrooms over four levels
Cul-de-sac location adjacent to Whitehall Park
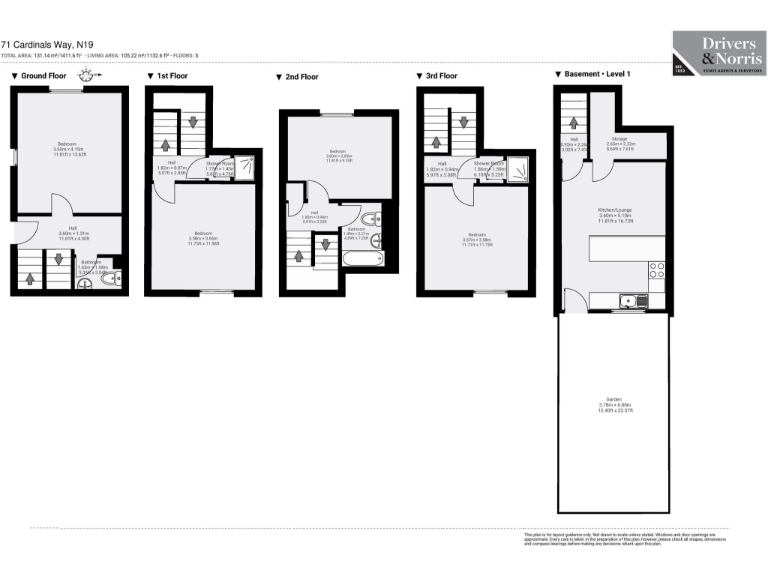
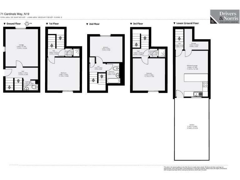
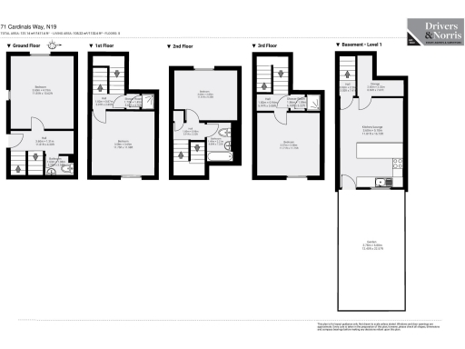
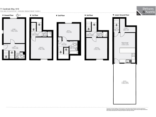
Approx. 1,132 sq ft; small front and rear gardens
600m to Archway Underground (Northern Line)
Single bathroom plus separate shower cubicle
Double glazing installed before 2002 (may be dated)
Mains gas central heating; cavity wall insulation assumed
Average crime and area deprivation; major conurbation setting
A chain-free three double-bedroom terraced townhouse arranged over four levels on a quiet cul-de-sac adjacent to Whitehall Park. The house offers a lounge, kitchen/diner, separate shower cubicle plus bathroom/WC, and an enclosed rear garden — practical family accommodation close to local green space. Built in the early 1990s, the property is mid-terrace with cavity walls and double glazing (installed before 2002) and benefits from gas central heating via boiler and radiators.
Positioned around 600 metres from Archway Underground (Northern Line) and well served by numerous bus routes, this home suits buyers who want inner-city convenience with a quieter street setting. Nearby primary and secondary schools have good Ofsted ratings, and local amenities include shops, cafes, pubs and sports facilities within easy reach. Broadband speeds are fast and mobile signal is excellent.
The house is a sensible buy for families or those looking to upsize within Islington; the layout and three double bedrooms provide clear rental or family flexibility. Note the plot is small and the property is average-sized overall — outdoor space is limited to front and rear gardens. There is a single main bathroom plus a separate shower cubicle, which may be a consideration for larger households.
Practical points: the glazing pre-dates 2002 and, while present, may not match current new-build standards; the build date (1991–1995) gives a modern-vintage feel rather than period character. Crime and area deprivation indicators are average. The property is offered freehold and currently being marketed with an existing under-offer figure, so prospective buyers should be prepared for competition.
3 bedroom flat for sale in Miranda Road, London, N19 — £695,000 • 3 bed • 1 bath • 818 ft²
3 bedroom maisonette for sale in Whitehall Park, London, N19 — £1,000,000 • 3 bed • 2 bath • 1355 ft²
2 bedroom duplex for sale in Tollington Way, Islington, London, N7 — £660,000 • 2 bed • 1 bath • 1099 ft²
4 bedroom terraced house for sale in Marlborough Road, Upper Holloway, London, N19 — £1,225,000 • 4 bed • 2 bath • 1803 ft²
3 bedroom apartment for sale in St. John's Way, London, N19 — £740,000 • 3 bed • 1 bath • 1089 ft²
2 bedroom house for sale in Wedmore Gardens, London, N19 — £575,000 • 2 bed • 1 bath • 554 ft²






































































