SY13 4NN - 3 bedroom semidetached house for sale in Edgeley Bank, Brow…

View on Property Piper

3 bedroom semi-detached house for sale in Edgeley Bank, Brown Moss, SY13

Summary - 2 EDGELEY HALL COTTAGE EDGELEY WHITCHURCH SY13 4NN

3 bed 1 bath Semi-Detached

Spacious three-bed cottage with large gardens and far-reaching countryside views.
Period cottage with exposed beams and bay window
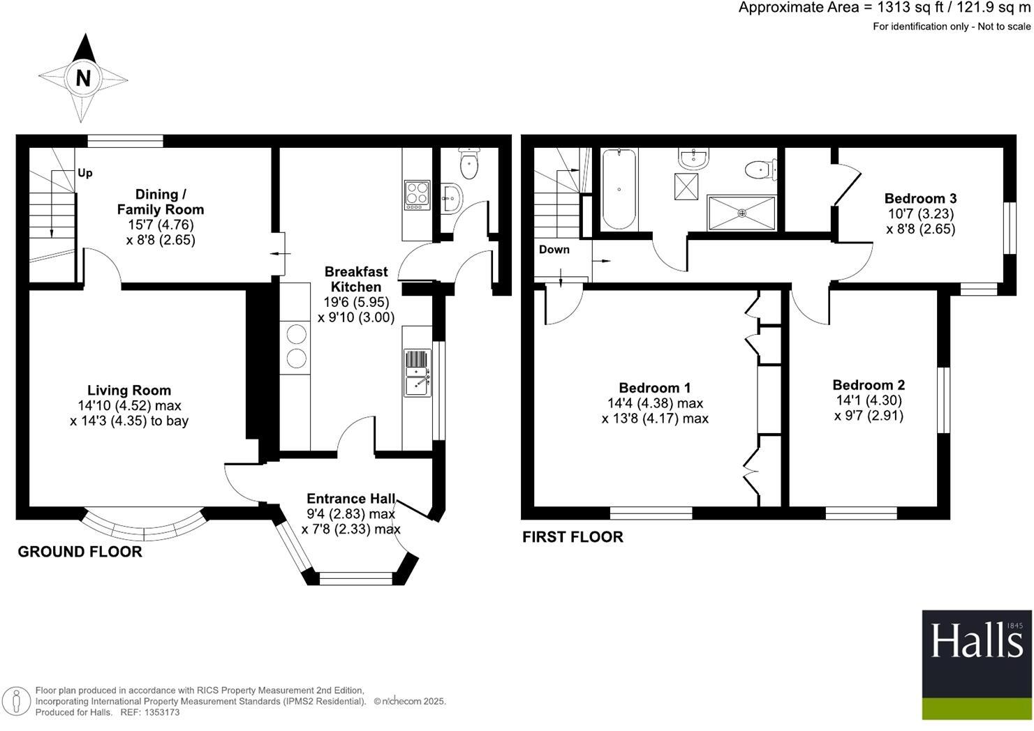
Tucked in a peaceful hamlet near Brown Moss, this late 17th/early 18th-century semi-detached cottage combines period charm with well-maintained, spacious accommodation. The house offers three good-sized bedrooms, a large modern family bathroom, and a generous sitting and dining/family room layout that suits everyday family life. The breakfast kitchen with an oil-fired AGA and countryside-facing window anchors the home with a warm, lived-in feel.

The mature, large gardens, paved seating/BBQ area and detached brick outbuilding extend living outdoors and provide room for children, pets and vegetable or hobby gardening. Parking for up to four cars on a gravel drive is a practical advantage in this rural setting. The location is semi-rural yet only about 2 miles from Whitchurch with shops, schools, train station and commuter routes to larger towns.

Practical points to note: heating is oil-fired with a boiler to radiators and drainage is to a septic tank; walls are solid brick and likely uninsulated, which can affect running costs and may require improvement. The property is Freehold and presented in good condition, but buyers should allow for ongoing maintenance typical of older, characterful homes. This cottage will suit families or those seeking roomy, characterful country living with easy access to local amenities.

Property Details

Brochure Descriptions

Image Descriptions

Floorplan Description

Rooms

Textual Property Features

Target Audience

AI Tags

Detected Visual Features

EPC Details

Nearby Schools

Nearest Bars And Restaurants

,,,,}

Nearest General Shops

,,}

Nearest Grocery shops

,,}

Nearest Supermarkets

,,}

Nearest Religious buildings

,,}

Nearest Medical buildings

,,,}

Nearest Leisure Facilities

,,,,}

Nearest Tourist attractions

,,}

Nearest Train stations

,,,,}

Nearest Bus stations and stops

,,,,}

Nearest Hotels

,,}

Tags

Local Market Stats

Similar Properties

Meta

High Res Images

Compatible Images

Low res Images

Thumbnails

Raw Images

High Res Floorplan Images

Compatible Floorplan Images

Low res Floorplan Images

FloorplanImages Thumbnail

Raw Floorplan Images