Ready-to-move-in flat with parking and communal garden close to Charlton amenities.
Top‑floor Victorian conversion with period character and large windows
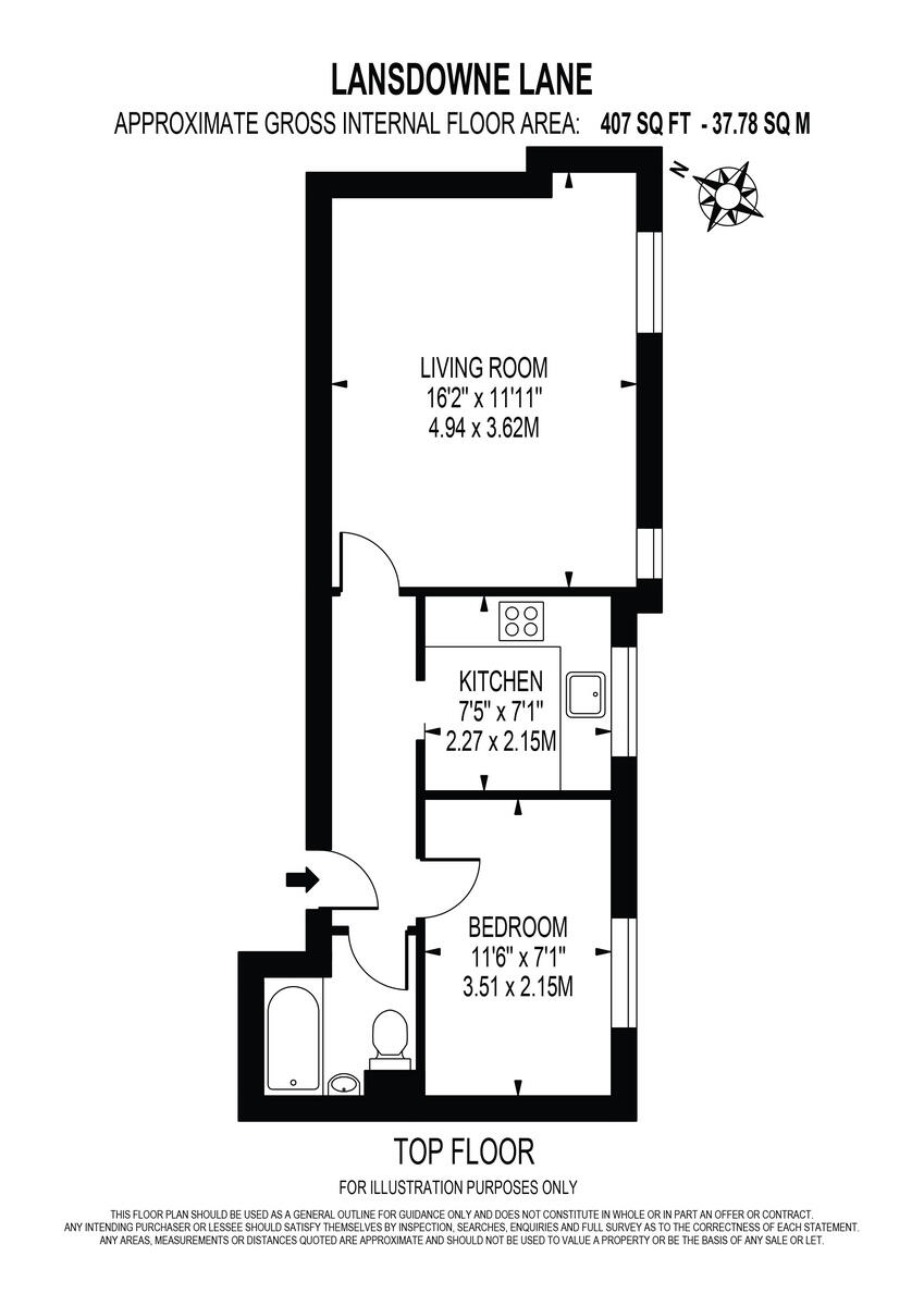
This top‑floor apartment sits within a substantial Victorian conversion in the Charlton Village Conservation Area. Tasteful, neutral décor and a bright living room make the space feel welcoming and ready to move into — ideal for someone taking their first step on the property ladder. The fitted kitchen is efficient for everyday cooking and benefits from good natural light.
Practical benefits include residents’ off‑street parking, a small communal garden and a long lease of 141 years. The location offers strong local conveniences: shops, cafés, bus routes nearby and Charlton Station within reach for regular rail services into central London. Several well‑rated primary and secondary schools are close, and green spaces such as Charlton House and Maryon Wilson Park are within easy reach.
Buyers should note the apartment is compact at about 407 sq ft and relies on electric room heaters rather than a gas central system. The building has timber‑frame walls with no known insulation (assumed) and double glazing of unknown installation date, which could affect energy performance and future heating bills. Annual service charge and ground rent are £2,500 and £150 respectively. The wider area records above‑average crime and local deprivation indices, which may concern some buyers despite excellent mobile signal and fast broadband.
Overall, this is a well‑presented, convenient first home or central London rental opportunity that balances period character with modern touches, but buyers should factor in energy and running‑cost implications.
1 bedroom apartment for sale in Elliscombe Road, London, SE7 — £260,000 • 1 bed • 1 bath • 430 ft²
2 bedroom apartment for sale in Elliscombe Road, Charlton, SE7 — £430,000 • 2 bed • 1 bath • 1017 ft²
2 bedroom apartment for sale in Wellington Gardens, Charlton, SE7 — £325,000 • 2 bed • 1 bath • 512 ft²
1 bedroom apartment for sale in Victoria Way, Charlton, SE7 — £279,000 • 1 bed • 1 bath • 461 ft²
2 bedroom flat for sale in Heathwood Gardens, Charlton, SE7 — £300,000 • 2 bed • 1 bath • 810 ft²
1 bedroom apartment for sale in Charlton Church Lane, Charlton, SE7 — £200,000 • 1 bed • 1 bath • 540 ft²














































































