BN22 0NL - 3 bed extended three bedroom bungalow in Summerlands Road,…

View on Property Piper

3 bedroom bungalow for sale in Summerlands Road, Eastbourne, East Sussex, BN22

Summary - 24 SUMMERLANDS ROAD EASTBOURNE BN22 0NL

3 bed 1 bath Bungalow

Single-level family home with South Downs views and large garden.
Three-bedroom extended semi-detached bungalow, single-level living
This extended three-bedroom semi-detached bungalow sits on a generous plot on Summerlands Road, enjoying elevated views across to the South Downs. The single-level layout is practical for families or downsizers, with a large living/dining area framed by bi-folds and a cosy log-burning stove for winter evenings.

Outside, the landscaped rear garden provides an elevated patio, level lawn, decked area and a useful storage studio — plenty of room for children to play and for alfresco entertaining. The wide paved driveway offers multiple off-street parking spaces and includes an EV charging point.

The house is well presented but has clear areas for future improvement: there is one bathroom for three bedrooms, the cavity walls were built without insulation (assumed), and the property dates from the mid-20th century so buyers should expect typical updating and energy-efficiency upgrades. Architect plans exist for a side extension if a buyer wants to increase living space (plans available; no approval mentioned).

Located in a very low-crime, affluent area with fast broadband and excellent mobile signal, the home is close to several well-rated primary schools and local amenities. Freehold tenure and a moderate council tax band add practical appeal for families seeking a comfortable, single-level home with scope to personalise.

Property Details

Brochure Descriptions

Image Descriptions

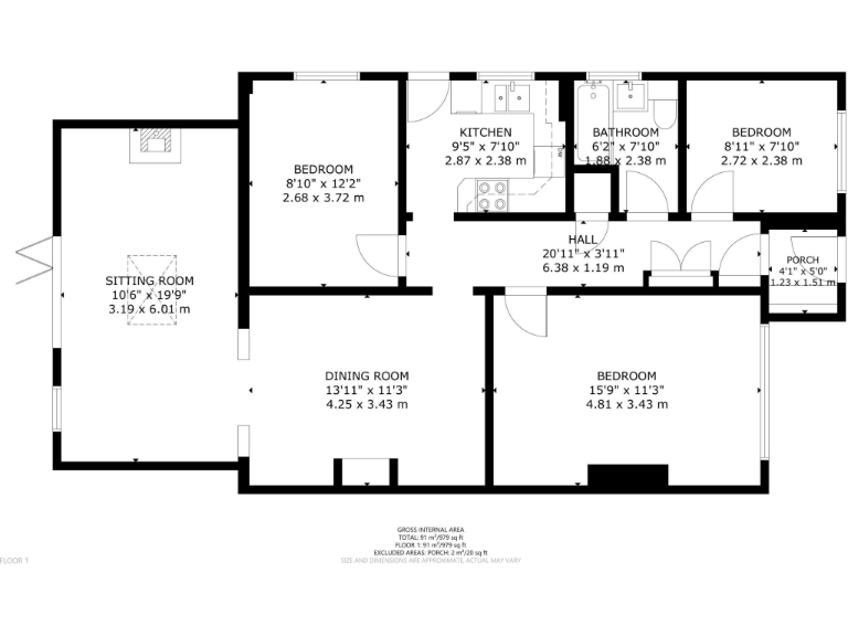
Floorplan Description

Rooms

Textual Property Features

Target Audience

AI Tags

Detected Visual Features

EPC Details

Nearby Schools

Nearest Bars And Restaurants

,,,,}

Nearest General Shops

,,}

Nearest Grocery shops

,,}

Nearest Supermarkets

,,}

Nearest Religious buildings

,,}

Nearest Medical buildings

,,,}

Nearest Leisure Facilities

,,,,}

Nearest Tourist attractions

,,}

Nearest Train stations

,,,,}

Nearest Bus stations and stops

,,,,}

Nearest Hotels

,,}

Tags

Local Market Stats

Similar Properties

Meta

High Res Images

Compatible Images

Low res Images

Thumbnails

Raw Images

High Res Floorplan Images

Compatible Floorplan Images

Low res Floorplan Images

FloorplanImages Thumbnail

Raw Floorplan Images