Large city‑centre building with consent for nine apartments and ground-floor office.
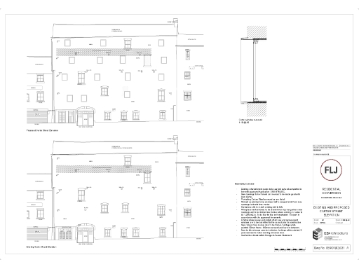
Grade II listed former warehouse, built 1802
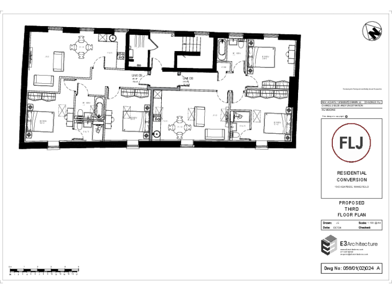
A rare Grade II listed former warehouse in Wakefield city centre, 19 Cheapside offers substantial scale (c.6,580 sq ft) and full planning consent for a nine‑apartment scheme with a self-contained lower ground floor office. The building retains historic brick elevation, tall windows and some original features, giving strong period character and attractive conversion potential for residential-led redevelopment or a mixed-use holding.
The property is freehold, VAT elected and currently single-let on a short-term basis to Switalski Solicitors, providing immediate albeit limited income while you progress works. There are two off-street parking spaces and excellent local transport links — Wakefield Westgate station is a five-minute walk, with fast rail connections to larger cities.
Important practical points are clear: the listing status will restrict alterations and may complicate conversion costs and timelines. The surrounding area scores high for crime and is relatively deprived, which could affect rental values and sales marketing. The building’s age and listed nature mean renovation and specialist works are likely; buyers should allow for conservation consents, potentially higher build costs and no EPC requirement (exempt).
This asset suits a purchaser experienced in historic conversions or an investor prepared to manage planning conditions and refurbishments. With full planning consent already secured, an owner-occupier or developer can move quickly to capitalise on city-centre demand — but factor in conservation-led specifications, remediation and marketing challenges in the local market.
Office for sale in Bond Terrace, Wakefield, WF1 — £385,000 • 1 bed • 1 bath • 2700 ft²
Office for sale in 20-22 Cheapside, Wakefield, WF1 2TF, WF1 — £350,000 • 1 bed • 1 bath • 3350 ft²
Office for sale in Stanley Road, Wakefield, West Yorkshire, WF1 — £149,950 • 1 bed • 1 bath • 653 ft²
Office for sale in The Springs, Wakefield, West Yorkshire, WF1 — £175,000 • 1 bed • 1 bath • 1471 ft²
Office for sale in 32 Cheapside, Wakefield, WF1 2TF, WF1 — £250,000 • 1 bed • 1 bath • 1950 ft²
High street retail property for sale in Elizabethan Gallery, Brook Street, Wakefield, WF1 1QW, WF1 — £200,000 • 1 bed • 1 bath • 2681 ft²


























































