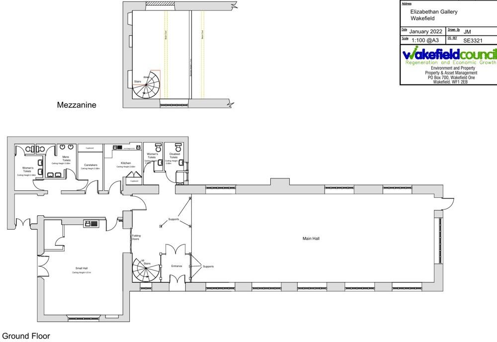
**Standout Features:**
- Grade II* Listed historic property
- Expansive footprint of over 2,600 sq ft
- Galleried mezzanine level
- Open plan hall with original architectural features
- Excellent central location opposite Wakefield Exchange and bus station
- Subject to planning permission for diverse uses (restaurant, leisure, community space)
The Elizabethan Gallery represents a rare opportunity to own a prominent piece of Wakefield’s history, originally established in the 16th century as a Grammar School by Royal Charter. This Grade II* Listed building showcases stunning period architecture, with high ceilings, original exposed beams, and stonework throughout. Its large open plan space and galleried mezzanine provide a versatile layout ideal for various business ventures—perfect for an ambitious investor looking to establish a unique restaurant, community center, or creative venue in a bustling urban area.
While the building is rich in character and potential, please note that the grounds immediately surrounding the property are not included in the sale, but may be available separately. Additionally, given its historic listing, any alterations or renovations would require appropriate planning permissions. This centrally located property not only offers a chance to contribute to the vibrant cultural tapestry of Wakefield but also presents an exciting investment potential in a rapidly developing area. Act swiftly to explore this exclusive listing before it’s gone!
Office for sale in Bond Terrace, Wakefield, WF1 — £385,000 • 1 bed • 1 bath • 2700 ft²
Office for sale in The Springs, Wakefield, West Yorkshire, WF1 — £175,000 • 1 bed • 1 bath • 1471 ft²
Office for sale in 19 Cheapside, Wakefield, WF1 2SD, WF1 — £525,000 • 1 bed • 1 bath • 6580 ft²
High street retail property for sale in 52 Kirkgate, Wakefield, WF1 1TQ, WF1 — £145,000 • 1 bed • 1 bath • 1042 ft²
High street retail property for sale in The Springs, Wakefield, WF1 — £395,000 • 1 bed • 1 bath • 4093 ft²
Office for sale in Westgate, Dewsbury, West Yorkshire, WF13 — £350,000 • 1 bed • 1 bath • 6976 ft²






















































