Generous plot, two garages and scope to extend (STPP) ideal for buyers seeking a project.
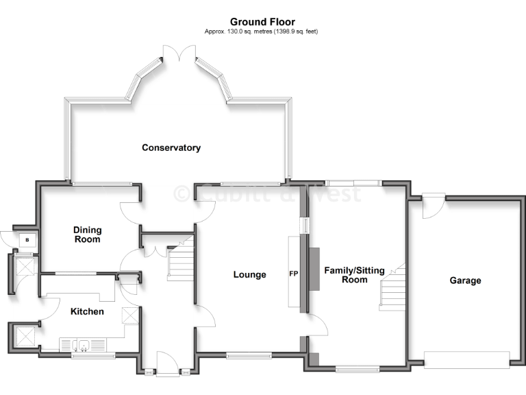
- Large level plot with secluded rear garden
- Two garages plus wide driveway for multiple cars
- Very large conservatory opening to garden
- Versatile four-bedroom layout; room to reconfigure
- Requires full modernisation and updating throughout
- Cavity walls likely have no insulation (assumed)
- Council tax band described as expensive
- Services/appliances not guaranteed; verify condition
Set back on a large, level plot on a quiet residential road in Caterham, this substantial four-bedroom house offers immediate space and privacy. The property includes two garages, a wide driveway and a large conservatory that opens directly onto a secluded rear garden — useful for family living and outdoor entertaining. The layout is versatile with generous room sizes throughout and scope to reinstate or reconfigure rooms to suit modern living.
The house requires full modernisation, presenting a clear opportunity for buyers who want to add value through refurbishment or extension (subject to planning). Key practical points: cavity walls likely have no insulation, services and appliances are not guaranteed, and council tax is described as expensive. These are important to budget for alongside renovation costs.
This is a strong proposition for families seeking long-term accommodation close to well-regarded local schools, or for investors/developers looking for a project in a very affluent area with good transport links, fast broadband and excellent mobile signal. The built era (1950s–1960s) means characterful proportions but also potential for upgrading heating, glazing and insulation. Viewing is recommended for buyers wanting a spacious house they can personalise and improve over time.
4 bedroom detached house for sale in Portley Lane, Caterham, Surrey, CR3 — £446,000 • 4 bed • 2 bath • 1827 ft²
3 bedroom semi-detached house for sale in Tupwood Lane, Caterham, Surrey, CR3 — £450,000 • 3 bed • 2 bath • 876 ft²
4 bedroom detached house for sale in Hawthorne Gardens, Caterham, Surrey, CR3 — £850,000 • 4 bed • 4 bath • 2107 ft²
5 bedroom detached house for sale in Stanstead Road, Caterham, Surrey, ., CR3 — £825,000 • 5 bed • 1 bath • 2321 ft²
4 bedroom detached house for sale in Whyteleafe Road, Caterham, CR3 — £1,100,000 • 4 bed • 2 bath • 2252 ft²
3 bedroom semi-detached house for sale in Fulford Road, Caterham, CR3 — £510,000 • 3 bed • 1 bath • 1097 ft²


















































































































