Chain-free four-bed period semi with planning permission and large garden.
Four good-sized bedrooms, two doubles with bay windows
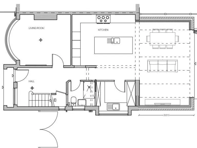
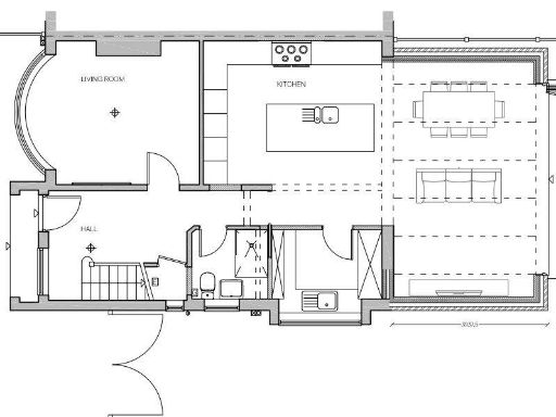
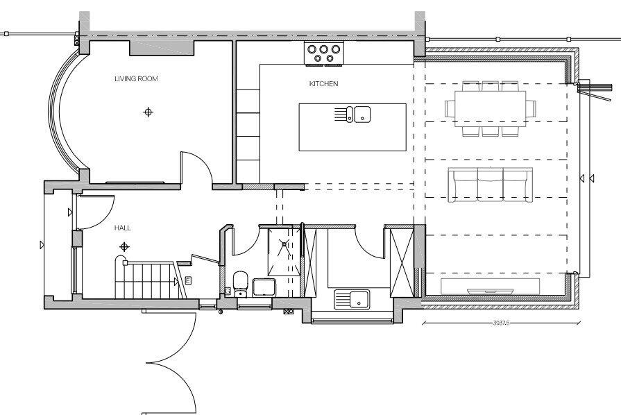
A substantial four-bedroom semi in the heart of West Didsbury, just off Burton Road, this period home keeps many original details including stained glass and bay windows. The current layout gives generous reception space: bay-fronted lounge, dining room, morning room and an extended kitchen opening to a large rear garden and patio. Off-street parking for several cars and a decent plot add practical family conveniences.
The house requires cosmetic updating and general renovation to reach its full potential; double glazing is present but install date is unknown. There is a single family bathroom plus a separate WC; buyers seeking two full bathrooms should note only one full bath/shower currently installed. Planning permission (Ref: 142571/FH/2025) is granted for a single-storey extension to create an open-plan kitchen-diner with bi-fold doors, downstairs shower room and utility — a clear route to add contemporary living space.
Sold freehold and chain-free, the home is well placed for local schools, shops and transport links and suits families who want character with scope to modernise. Practical details — mains gas boiler and radiators, filled cavity walls, fast broadband and excellent mobile signal — support everyday living. For buyers prepared to renovate, this property offers significant potential to create a roomy, updated family home in a sought-after area.
4 bedroom semi-detached house for sale in Sandileigh Avenue, Didsbury, Manchester, M20 — £850,000 • 4 bed • 1 bath • 2356 ft²
5 bedroom semi-detached house for sale in Langford Road, West Didsbury, Manchester, M20 — £800,000 • 5 bed • 1 bath • 1857 ft²
3 bedroom end of terrace house for sale in Westbourne Grove, West Didsbury, Manchester, M20 — £600,000 • 3 bed • 3 bath • 1447 ft²
4 bedroom semi-detached house for sale in Didsbury Park, Didsbury, Manchester, M20 — £575,000 • 4 bed • 1 bath • 1231 ft²
6 bedroom semi-detached house for sale in Old Lansdowne Road, West Didsbury, M20 — £600,000 • 6 bed • 1 bath • 2789 ft²
3 bedroom semi-detached house for sale in Anerley Road, Didsbury Village, M20 — £550,000 • 3 bed • 1 bath • 1076 ft²






























































