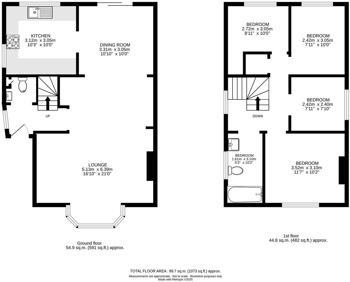
Spacious four-bedroom within easy walking distance of stations and top schools.
- Four bedrooms, suitable for families or home office use
- Open-plan lounge/diner with bay window and wood flooring
- Modern fitted kitchen with integrated appliances
- East-facing rear garden approx 50ft, patio and lawn
- Off-street driveway parking and good front garden space
- Single family bathroom plus downstairs WC (one bathroom only)
- 1930s solid brick construction; likely no wall insulation
- Double glazing installed pre-2002; consider energy upgrades
A well-proportioned four-bedroom detached house in a quiet no-through road, suited to growing families who value schooling and commuting links. The ground floor offers an open-plan lounge/diner and a modern kitchen, while the east-facing rear garden of around 50ft provides a safe play and entertaining area. Off-street driveway parking and a generous front garden add practical kerb appeal.
The house is solid-brick 1930s construction with double glazing installed before 2002 and mains gas central heating; these deliver comfort now but there is likely scope to improve thermal performance (walls assumed uninsulated). There is a single family bathroom and one WC downstairs, so buyers seeking multiple bathrooms should allow for potential reconfiguration or extension.
Located within easy walking distance of Cheam and Sutton stations and several well-regarded schools, the property suits families prioritising transport and education. The area is very low crime, affluent, with excellent mobile signal and fast broadband, making it convenient for home working. Overall, the home offers ready-to-live-in accommodation with clear opportunities for energy and layout upgrades to add long-term value.
4 bedroom detached house for sale in Alma Crescent, Cheam, Sutton, SM1 — £625,000 • 4 bed • 1 bath • 1103 ft²
3 bedroom detached house for sale in Alma Crescent, Cheam, Sutton, SM1 — £600,000 • 3 bed • 1 bath • 844 ft²
4 bedroom detached house for sale in The Dene, South Cheam, Sutton, SM2 — £925,000 • 4 bed • 2 bath • 1615 ft²
4 bedroom terraced house for sale in Stoughton Avenue, Cheam, Sutton, SM3 — £725,000 • 4 bed • 2 bath • 1206 ft²
4 bedroom semi-detached house for sale in St. Albans Road, Cheam, Sutton, SM1 — £575,000 • 4 bed • 1 bath • 969 ft²
4 bedroom semi-detached house for sale in Fieldsend Road, Cheam, Sutton, SM3 — £575,000 • 4 bed • 2 bath • 980 ft²






































































