Build a detached family home in a sought-after semi-rural setting with ample garden and parking.
Freehold building plot with outline planning permission (Ref P/2025/00133)
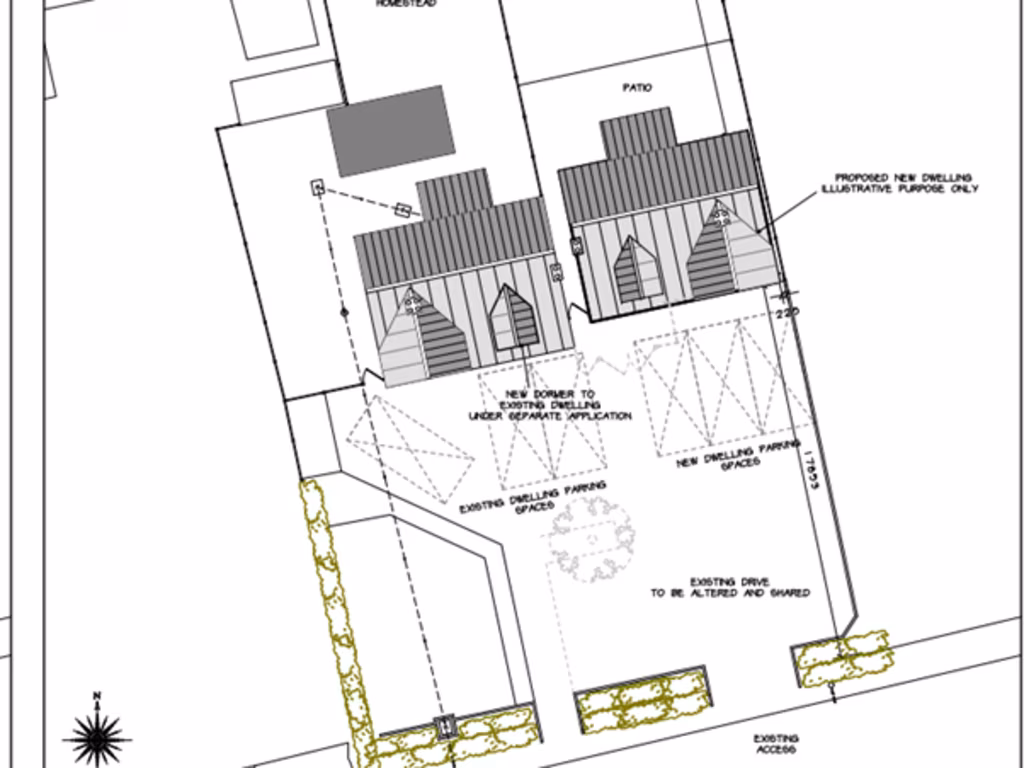
A substantial freehold building plot with outline planning (Ref P/2025/00133) for a detached family house, positioned in a desirable edge-of-town setting with views over adjacent fields. The large frontage allows generous off-street parking while the rear provides a sizeable garden suitable for family use or landscaping to taste.
The site benefits from good local amenities and transport links, excellent mobile signal and proximity to several 'Good' rated primary and secondary schools, making it appropriate for families seeking space and convenience. Outline permission means the principle is approved; reserved matters and full approvals will be required before construction.
Buyers should note this lot is sold at auction (29 Oct 2025) under unconditional terms with binding contracts exchanged on sale. A minimum 5% deposit applies, together with a non-refundable buyers’ fee (4.8% subject to minimum) and other possible costs in the Legal Pack. EPC exempt; broadband speeds reported as average.
This plot suits a buyer wanting to build a contemporary detached home in a very affluent, semi-rural pocket of Burton-on-Trent. It also offers potential for investment or developer interest, subject to completing the reserved matters and complying with planning conditions.
Land for sale in Nelson Street, Burton-on-Trent, Staffordshire, DE15 — £65,000 • 1 bed • 1 bath
Plot for sale in Burton Road, Midway, Swadlincote, DE11 — £205,000 • 1 bed • 1 bath • 667 ft²
Land for sale in Burton Road, Repton, Derby, DE65 — £14,000 • 1 bed • 1 bath
Plot for sale in Uttoxeter Road, Foston, Derby, DE65 — £135,000 • 3 bed • 3 bath • 744 ft²
Land for sale in Burton Road, Repton, Derby, DE65 — £14,000 • 1 bed • 1 bath
Land for sale in Burton Road, Repton, DE65 — £14,000 • 1 bed • 1 bath


































