Large semi-rural plot with outline planning permission for a three-bedroom home..
Outline planning permission for three-bedroom detached dwelling (DMPA/2023/0896)
Large semi-rural plot with private rear garden and driveway parking
Good road access to A50/A38; short drive to village amenities
Buyer responsible for demolishing garage and clearing overgrown site
Reserved matters not discharged — review decision notice before purchase
Derelict shed/outbuilding and overgrown vegetation require work or removal
Freehold tenure; flood risk low
Council tax level above average
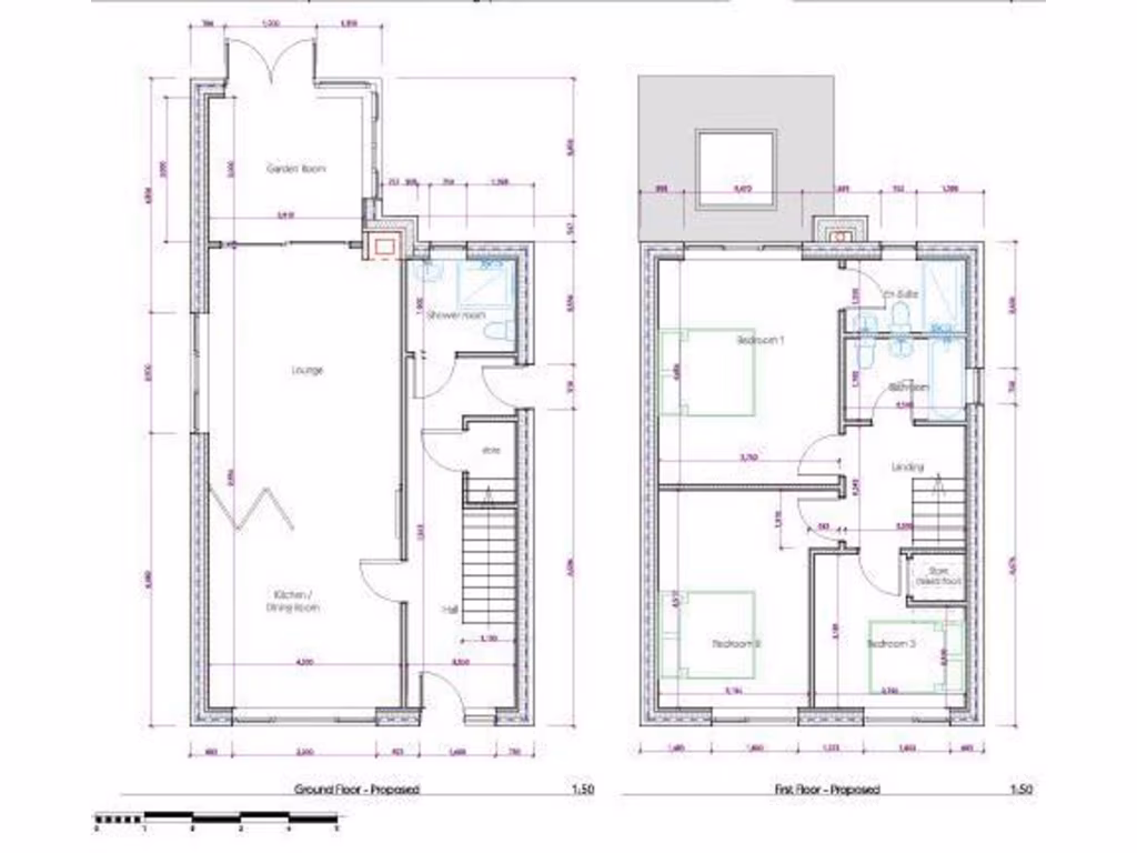
This large, semi-rural building plot on Uttoxeter Road comes with outline planning permission (DMPA/2023/0896) for a three-bedroom detached home. The site offers a spacious rear garden, private driveway parking and convenient road links (A50/A38) to nearby towns, making it suited to a family home or a small development for an investor comfortable with a build project.
The planning layout proposes an open-plan lounge/dining kitchen, garden room, ground-floor shower room and three first-floor bedrooms (one en-suite). Decision notice has been issued; however, reserved matters remain to be submitted and approved—buyers should review the decision notice and confirm any conditions before committing.
The plot is sold freehold. The existing detached garage must be demolished and the site cleared; buyers are also responsible for securing boundaries. The current garden and outbuilding are overgrown and will need removal or substantial repair, so budget and contractor access should be factored in. Council tax for the area is above average.
In summary: a rare, larger-than-average plot with outline permission in a peaceful hamlet setting and good road access. It suits buyers seeking to build a traditional-style family house or investors with experience of delivering a reserved matters application and carrying out site clearance works.
Plot for sale in Burton Road, Midway, Swadlincote, DE11 — £205,000 • 1 bed • 1 bath • 667 ft²
Plot for sale in Woodville Road, Hartshorne, DE11 — £200,000 • 1 bed • 1 bath
3 bedroom detached bungalow for sale in Woodville Road, Hartshorne, DE11 — £320,000 • 3 bed • 1 bath • 1346 ft²
Plot for sale in Development Plot - Dalbury Lees, Ashbourne, Derbyshire, DE6 — £275,000 • 1 bed • 1 bath • 2713 ft²
Land for sale in Egginton Road, Hilton, Derby, DE65 — £200,000 • 5 bed • 4 bath • 4165 ft²
Land for sale in Nelson Street, Burton-on-Trent, Staffordshire, DE15 — £65,000 • 1 bed • 1 bath






































