TN25 6EU - 2 bedroom bungalow for sale in Swan Lane, Sellindge, Ashfor…

View on Property Piper

2 bedroom bungalow for sale in Swan Lane, Sellindge, Ashford, Kent, TN25

Summary - 24 SWAN LANE SELLINDGE ASHFORD TN25 6EU

2 bed 1 bath Bungalow

**Standout Features:**
- Semi-detached chalet bungalow in a central village setting
- 2 bedrooms, plus 2 versatile loft rooms
- Modern fitted kitchen with inviting living space
- Immaculate gardens on a generous corner plot
- Secure off-road parking and insulated garage
- Chain free, offering immediate availability
- Excellent catchment area for primary and secondary schools

This charming semi-detached bungalow in Sellindge offers a comfortable living experience with its well-designed layout, featuring two bedrooms and two loft rooms that present excellent potential for home office or additional storage. Nestled on a desirable corner plot, this property boasts immaculate gardens and ample off-road parking, including a spacious garage—ideal for families or investors alike.

The modern fitted kitchen connects seamlessly to a spacious living room with French doors leading to the garden, perfect for entertaining or enjoying serene views. With no onward chain, this home is ready for you to move in and make it your own. The surrounding area is rich with amenities, including a variety of recreational facilities and access to esteemed primary and secondary schools, making it a prime location for family living.

While the property's overall condition is good, prospective buyers should consider its oil-fired central heating system and average broadband speeds. This residence in the heart of Sellindge embodies comfort and convenience—explore the potential for your future here today!

Property Details

Brochure Descriptions

Image Descriptions

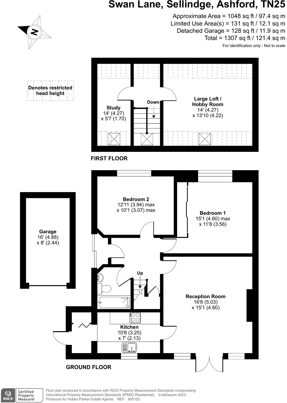
Floorplan Description

Rooms

Textual Property Features

Detected Visual Features

EPC Details

Nearby Schools

Nearest Bars And Restaurants

,,,,}

Nearest General Shops

,,}

Nearest Grocery shops

,,}

Nearest Supermarkets

,,}

Nearest Religious buildings

,,}

Nearest Medical buildings

,,,}

Nearest Leisure Facilities

,,,,}

Nearest Tourist attractions

,,}

Nearest Train stations

,,,,}

Nearest Bus stations and stops

,,,,}

Nearest Hotels

,,}

Tags

Local Market Stats

Similar Properties

Meta

High Res Images

Compatible Images

Low res Images

Thumbnails

Raw Images

High Res Floorplan Images

Compatible Floorplan Images

Low res Floorplan Images

FloorplanImages Thumbnail

Raw Floorplan Images