Spacious period property with long garden and strong school catchments.
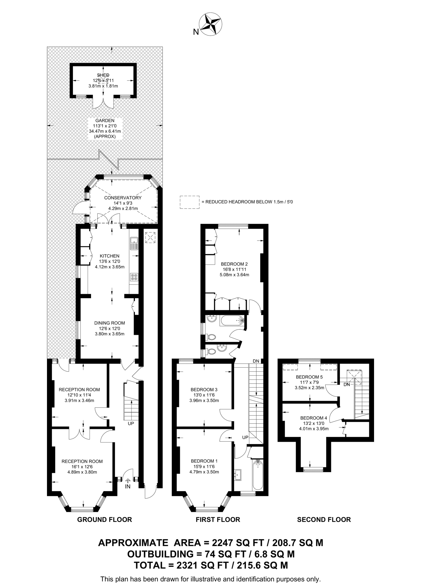
Five bedrooms and three receptions across 2,321 sq ft of period space
An impressive five-bedroom Victorian semi-detached house offering generous living space across 2,321 sq ft. High ceilings, restored original floorboards, bay windows and period cornices provide authentic character throughout, while a large Elizabethan conservatory opens onto a long, well-kept 113 ft rear garden ideal for family life and entertaining.
Practical features include a terracotta-tiled kitchen-diner, three reception rooms, two bathrooms, a two-car driveway plus on-street parking, and an Ohme electric vehicle charging point. Transport links are strong with regular buses to Woolwich Elizabeth Line and DLR (about 10 minutes), and easy access toward Canary Wharf and central London.
Notable positives sit alongside some trade-offs. The house is of solid brick construction from 1905 and insulation details are unknown, so buyers should consider upgrading wall insulation and modern energy-efficiency measures. There are only two bathrooms for five bedrooms, which could be limiting for larger households. The surrounding ward records higher deprivation and average crime rates—practical commuting and excellent mobile/broadband performance partly offset this.
This property will suit families seeking space, character and a large south-facing garden within strong school catchments. It also suits buyers wanting a period home with scope to improve energy performance and add contemporary finishes where desired. Clear, factual inspection and consideration of retrofit costs are recommended before purchase.
5 bedroom terraced house for sale in Victoria Way, Charlton, SE7 — £1,000,000 • 5 bed • 2 bath • 1870 ft²
5 bedroom terraced house for sale in Heathwood Gardens, Charlton, SE7 — £975,000 • 5 bed • 3 bath • 2000 ft²
5 bedroom semi-detached house for sale in Coleraine Road, Blackheath, London, SE3 — £2,000,000 • 5 bed • 3 bath • 3200 ft²
5 bedroom terraced house for sale in Troughton Road, Charlton, SE7 — £800,000 • 5 bed • 2 bath • 1401 ft²
4 bedroom semi-detached house for sale in Coxmount Road, Charlton, SE7 — £525,000 • 4 bed • 2 bath • 1500 ft²
5 bedroom detached house for sale in Little Heath, Charlton, SE7 — £1,000,000 • 5 bed • 2 bath • 2499 ft²






























































