Ready-to-build four-bedroom plot with orchard and stream in peaceful Benholm..
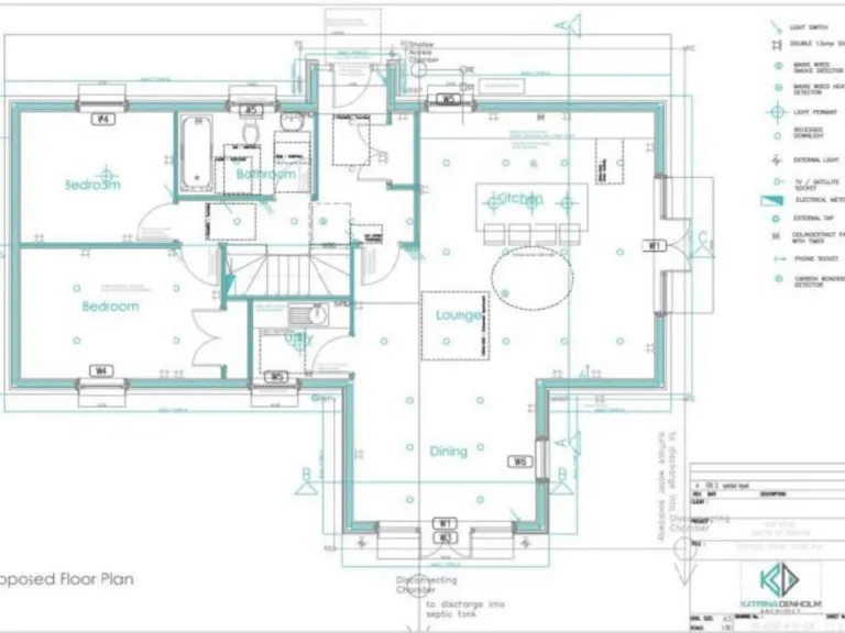
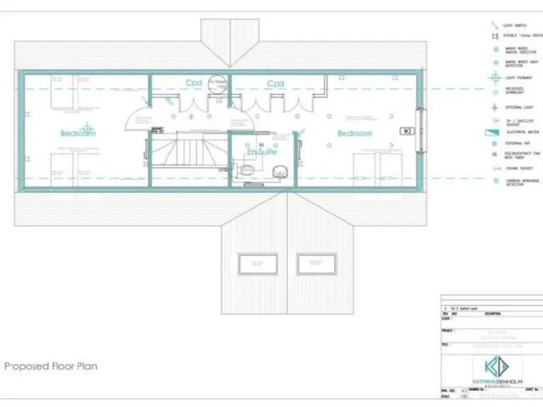
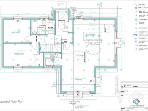
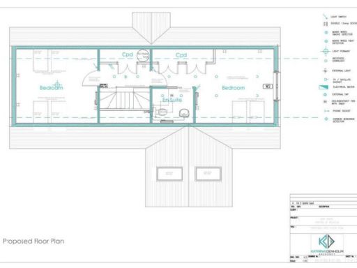
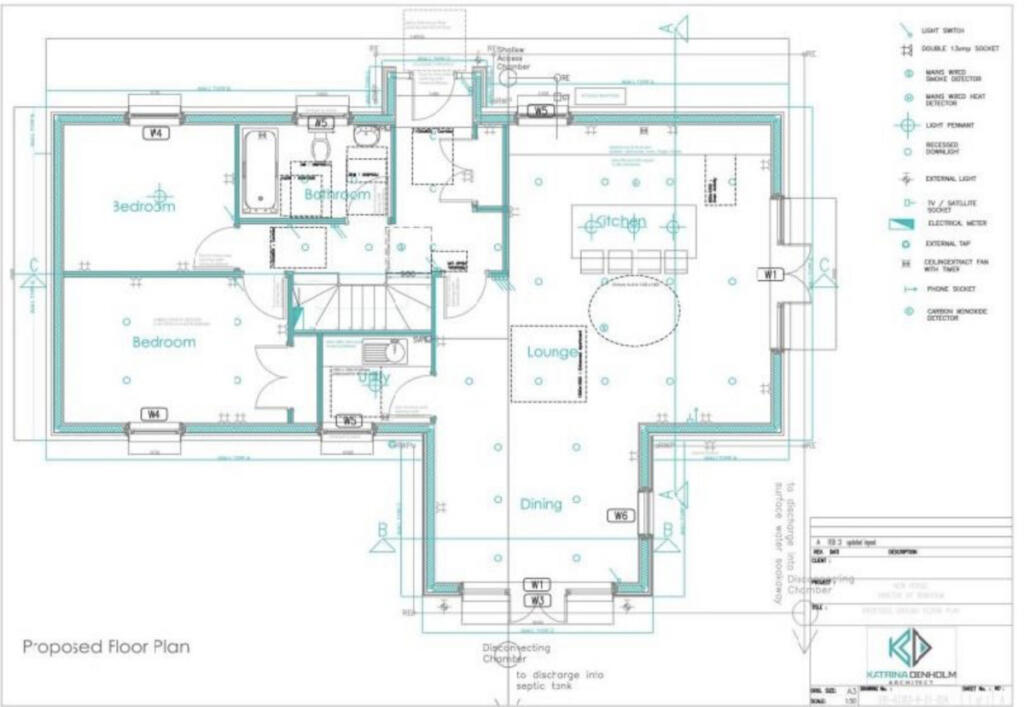
Full planning permission and building warrant granted for four-bedroom house
A rare, fully permitted building plot in the peaceful village of Kirkton of Benholm, ready for a bespoke four-bedroom home. Full planning permission (APP/2021/2199) and a building warrant (BW/2022/0210) are in place, and key legal matters such as the access servitude and SEPA septic discharge licence have been concluded.
The site is spacious (approx. 11,302 sq ft) and bordered by the Burn-of-Benholm, a farmers’ field and an on-site orchard, offering strong countryside privacy and attractive outlooks. Practical on-site utilities include fast broadband, an existing septic tank and approved power connections from the neighbouring site, making the plot suited to families wanting to build rather than buy an existing home.
Location benefits include close proximity to Lathallan School (around five minutes’ drive) and easy access to Montrose, Johnshaven and nearby coastal and walking amenities. The plot’s rural character will suit buyers seeking tranquillity, outdoor access and the chance to design a home tailored to family life.
Important considerations: tenure is listed as unknown and the wider area is classified as very deprived, which may affect resale or financing options. Mobile signal is average and the property is an undeveloped site, requiring a full build programme and associated costs to complete the new house.
Land for sale in Woodside of Benholm, Johnshaven, Montrose, DD10 0HY, DD10 — £250,000 • 1 bed • 1 bath
Land for sale in House Site & Land At Backfield Farm, Drumlithie, Stonehaven, Aberdeenshire, AB39 — £135,000 • 1 bed • 1 bath
Plot for sale in Plot 2, Land To North East Of 3, Old Aberdeen Road, Fordoun, AB30 — £75,000 • 4 bed • 2 bath
Land for sale in Luthermuir, Laurencekirk, AB30 — £80,000 • 1 bed • 1 bath
Plot for sale in Hillside, Montrose, Montrose, DD10 — £115,000 • 1 bed • 1 bath • 12917 ft²
Land for sale in Land At Luthermuir, Laurencekirk, AB30 1BA, AB30 — £170,000 • 1 bed • 1 bath


































