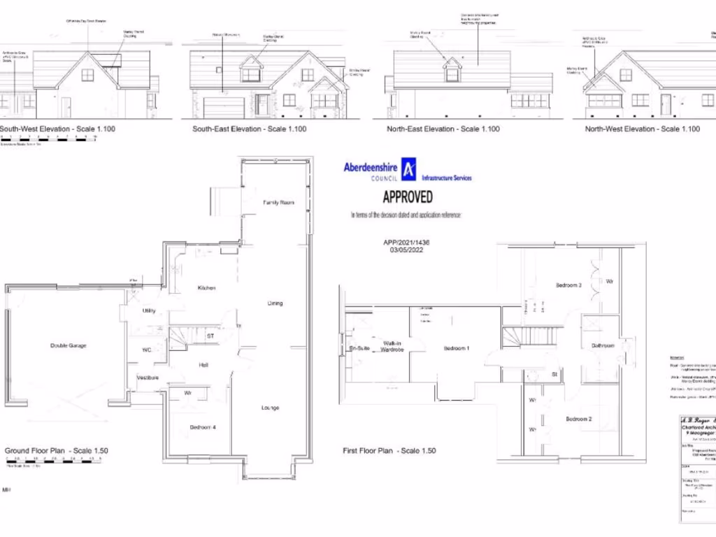
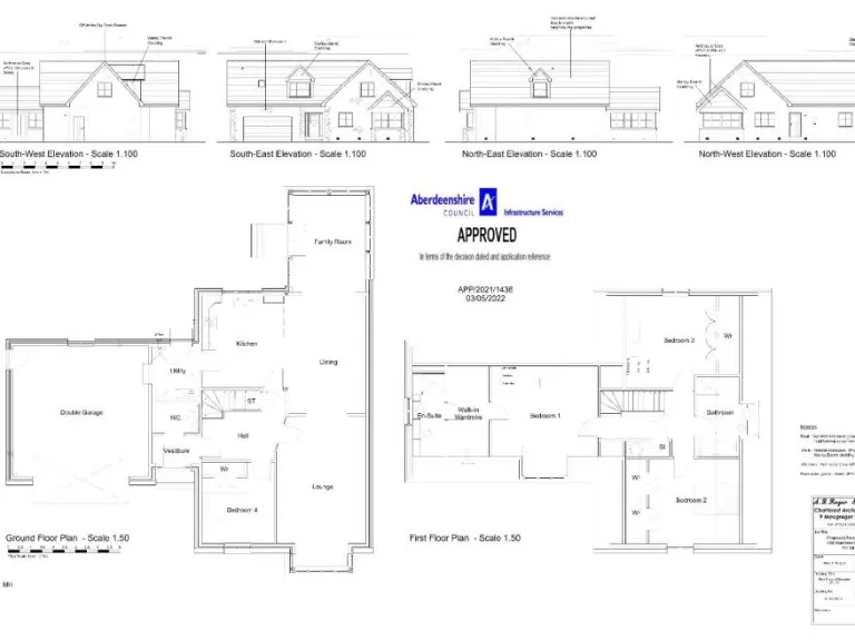
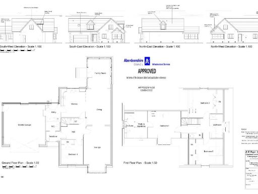
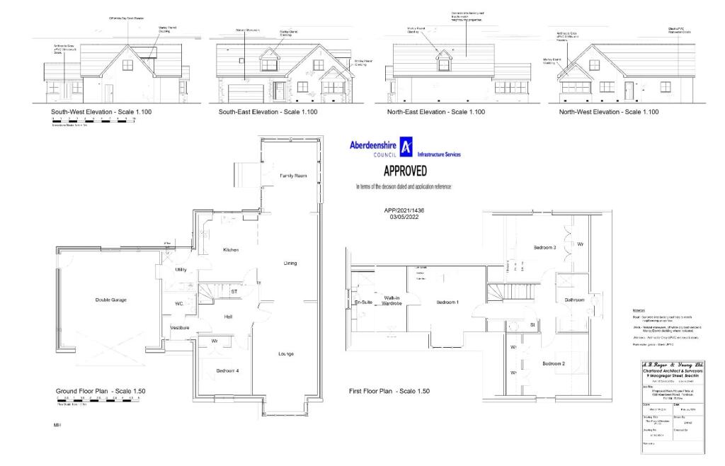
**Key Features:**
- Full Planning Permission for a modern 4-bedroom detached two-storey dwelling
- Generously sized plot of approximately 1353sqm (0.35 acres)
- Located on the outskirts of Fordoun village with excellent transport links
- Spacious open-plan living design with a ground-floor bedroom and WC
- Integral double garage plus additional driveway space
- Potential for landscaping your dream garden
**Summary:**
Seize the rare opportunity to develop a modern family home in the picturesque village of Fordoun. This exceptional plot, extending over 1353sqm, comes with Full Planning Permission for a 4-bedroom detached dwelling, ideal for families looking for room to grow. The proposed layout offers an open-plan design perfect for contemporary living, featuring a desirable ground-floor bedroom and ensuite facilities in addition to three double bedrooms upstairs. Additionally, the integral double garage and driveway provide ample parking options, while the expansive grounds allow for personalized landscaping.
While the location promises a tranquil rural lifestyle, average broadband and mobile signal might warrant consideration for those reliant on connectivity. As a developing area, Fordoun's potential is underscored by convenient transport links to Aberdeen and Dundee, making it a fascinating prospect for both families and investors alike. Don’t miss out on crafting your future in this enchanting setting—take advantage of this unique opportunity today!
Land for sale in Old Aberdeen Road, Fordoun, Laurencekirk, Aberdeenshire, AB30 1NU, AB30 — £53,000 • 1 bed • 1 bath
Land for sale in Benholm, Montrose, DD10 0, DD10 — £98,500 • 1 bed • 1 bath • 11302 ft²
Plot for sale in Fasque House Estate, Fettercairn, Laurencekirk, AB30 — £136,000 • 1 bed • 1 bath
Land for sale in House Site & Land At Backfield Farm, Drumlithie, Stonehaven, Aberdeenshire, AB39 — £135,000 • 1 bed • 1 bath
Land for sale in Land At Luthermuir, Laurencekirk, AB30 1BA, AB30 — £170,000 • 1 bed • 1 bath
Land for sale in Luthermuir, Laurencekirk, AB30 — £80,000 • 1 bed • 1 bath










