Ideal for first-time buyers seeking central location and scope to add value.
Two double bedrooms with built-in storage
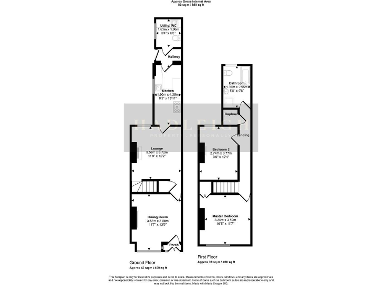
Two reception rooms with period features
Separate utility room and ground-floor WC
Fully boarded loft suitable for conversion (subject to consents)
Small, low-maintenance rear garden and neat foregarden
Freehold; council tax band C and affordable
Solid brick walls assumed uninsulated; EPC D
Modest footprint — rooms and plot are small-to-average
This well-presented mid-terrace offers a compact, comfortable home in a sought-after Harborne location. Two double bedrooms, two reception rooms and a separate utility/WC make it practical for first-time buyers or young couples seeking ready-to-move-in accommodation close to shops and transport.
Period features such as bay windows, original mouldings and decorative fireplaces combine with modern upgrades including double glazing and gas central heating. A fully boarded loft provides genuine scope to add a bedroom or storage (subject to consent) and the small, low-maintenance rear garden suits busy lifestyles.
Buyers should note the property’s solid brick walls are assumed uninsulated and the EPC is band D, so there’s potential to improve energy efficiency. Plot and room sizes are modest; the house suits those wanting a compact urban home rather than large-family living. Overall, a tidy, characterful freehold with clear value-add potential.
2 bedroom terraced house for sale in Northfield Road, Harborne, Birmingham, B17 — £295,000 • 2 bed • 1 bath • 851 ft²
2 bedroom terraced house for sale in Hartledon Road, Birmingham, B17 — £315,000 • 2 bed • 1 bath • 926 ft²
2 bedroom semi-detached house for sale in Old Church Road, Harborne, Birmingham, B17 — £245,000 • 2 bed • 1 bath • 776 ft²
3 bedroom terraced house for sale in Hartledon Road, Harborne, Birmingham, B17 0AA, B17 — £390,000 • 3 bed • 2 bath • 953 ft²
3 bedroom terraced house for sale in Hartledon Road, Harborne, Birmingham, B17 — £375,000 • 3 bed • 1 bath • 921 ft²
3 bedroom end of terrace house for sale in Wood Lane, Harborne, Birmingham, B17 — £450,000 • 3 bed • 2 bath • 1185 ft²


































































































































