Move-in ready home near schools and fast rail links to London.
Converted loft with high ceilings and period features
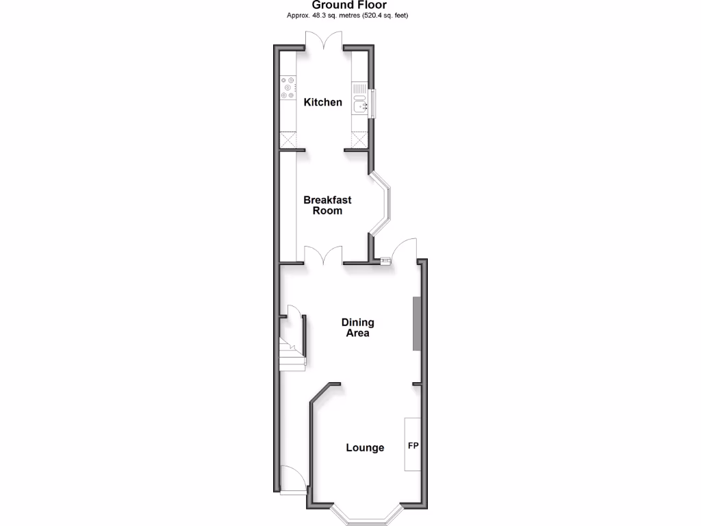
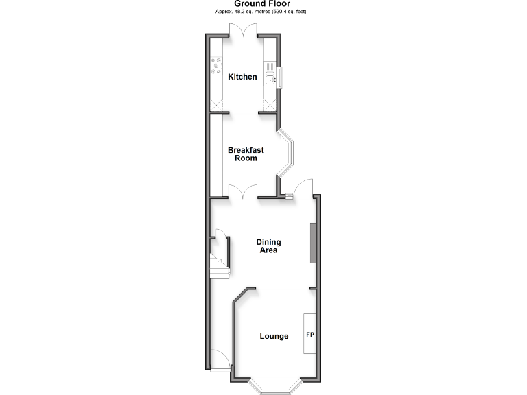
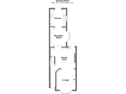
This newly renovated Victorian semi offers flexible family accommodation across three floors, including a converted loft with high ceilings and period features. The large principal bedroom and generous reception rooms create an airy feel, while double glazing and a modern heating system provide everyday comfort. The property is freehold and ready to move into with no immediate works required.
Practical benefits include off-street parking and a private garage, plus a low-maintenance rear garden and garden shed. Local shops and several well-regarded schools are within walking distance, and Dover Priory station provides fast rail links to London — a strong commuting advantage.
Be aware of a few constraints: there is a single family bathroom serving four bedrooms, and the plot is small with limited outdoor space. The house is of solid brick construction typical of 1900–1929 builds, with no known wall insulation (assumed) — this may influence long-term running costs or future upgrade plans. The wider area is described as blue-collar terraces with constrained renting profiles; crime and area deprivation are reported as average.
Overall, this is a move-in-ready period home that will suit growing families or buyers seeking generous internal space and excellent transport links. Buyers wanting a larger garden, additional bathrooms, or wall insulation should factor those priorities into their plans.
4 bedroom terraced house for sale in Barton Road, Dover, Kent, CT16 — £325,000 • 4 bed • 2 bath • 1120 ft²
3 bedroom terraced house for sale in Buckland Avenue, Dover, Kent, CT16 — £250,000 • 3 bed • 1 bath • 937 ft²
3 bedroom terraced house for sale in Beaconsfield Avenue, Dover, Kent, CT16 — £250,000 • 3 bed • 1 bath • 1120 ft²
4 bedroom semi-detached house for sale in Heathfield Avenue, Dover, Kent, CT16 — £300,000 • 4 bed • 2 bath • 934 ft²
4 bedroom terraced house for sale in Millais Road, Dover, CT16 — £289,950 • 4 bed • 2 bath
3 bedroom end of terrace house for sale in Woods Place, Dover, Kent, CT17 — £300,000 • 3 bed • 2 bath • 1411 ft²


































































