Spacious plot and practical layout for growing families near good schools.
Large 130-foot rear garden with two powered sheds
Converted, insulated garage with hot/cold water and power
Open-plan kitchen/living/dining — great for family life
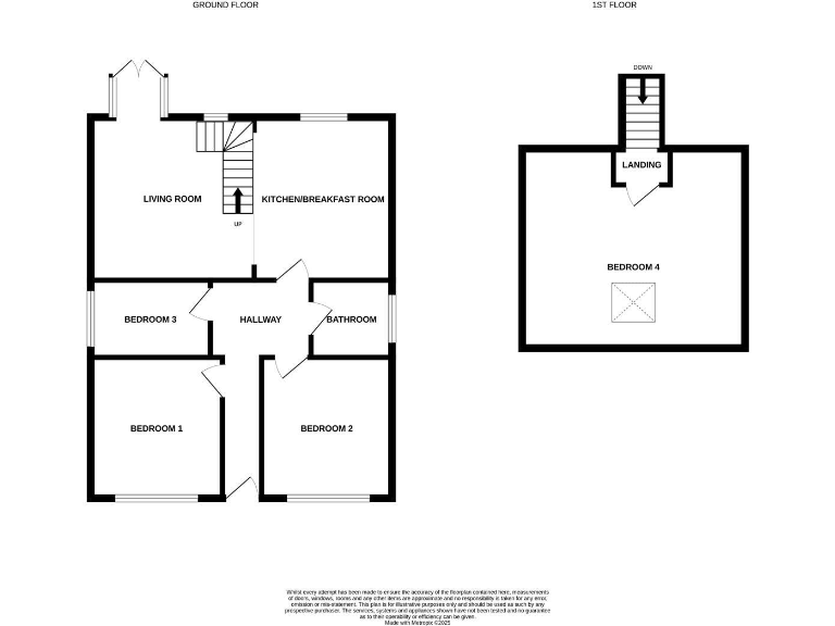
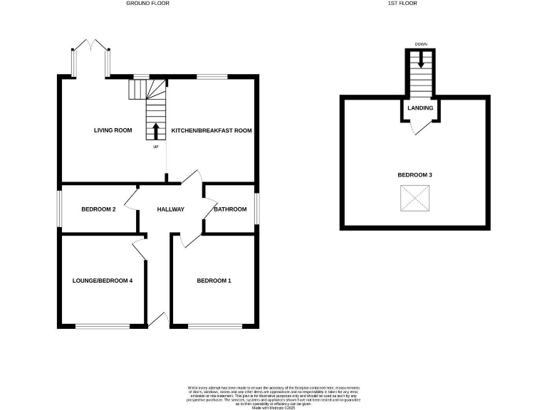
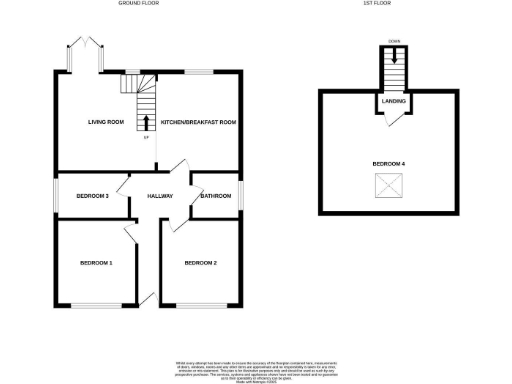
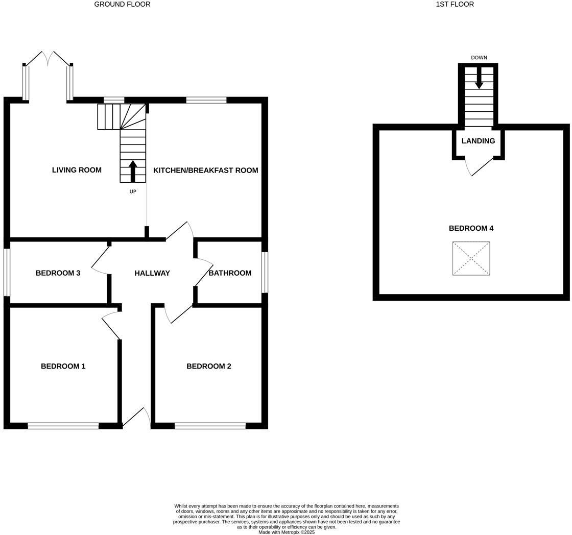
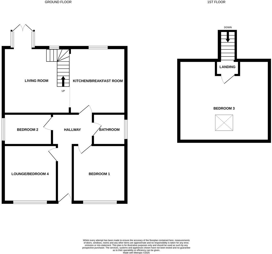
Three ground-floor bedrooms plus large loft double upstairs
Ample off-street parking — room for multiple vehicles
Single bathroom for four-bedroom accommodation (potential issue)
Cavity walls likely uninsulated — consider energy upgrades
Double glazing installed before 2002, may need future replacement
This well-presented detached dormer bungalow in Holton-le-Clay offers practical family living with generous outdoor space. The ground floor includes three bedrooms, a modern bathroom and a large open-plan kitchen/living/dining area that becomes the social heart of the home. A substantial loft bedroom provides flexible accommodation for older children or guests.
Outside is a standout 130-foot rear garden with established borders, two powered sheds and a gated driveway with room for multiple vehicles. The detached garage has been thoughtfully converted into an insulated, plumbed and powered utility/workshop space, adding useful ancillary accommodation.
The property benefits from gas central heating, a multi-fuel burner and double glazing, and it sits close to well-regarded local schools and village amenities. Practical considerations: the house measures around 722 sq ft, has a single bathroom for four bedrooms, and the cavity walls are assumed uninsulated — upgrade opportunity for energy improvements. Double glazing appears to pre-date 2002 and further fabric or insulation work may be desired by buyers seeking modern efficiency.
4 bedroom detached bungalow for sale in Osbourne Drive, Holton Le Clay, DN36 — £275,000 • 4 bed • 1 bath • 1097 ft²
3 bedroom detached bungalow for sale in Silver Street, Holton le Clay, Grimsby, DN36 — £250,000 • 3 bed • 1 bath • 867 ft²
3 bedroom bungalow for sale in Lindsey Drive, Holton-le-Clay, Grimsby, Lincolnshire, DN36 — £225,000 • 3 bed • 1 bath • 786 ft²
2 bedroom semi-detached bungalow for sale in Tetney Lane, Holton-le-clay, DN36 — £215,000 • 2 bed • 1 bath • 670 ft²
3 bedroom semi-detached bungalow for sale in Pinfold Lane, Holton Le Clay, DN36 — £192,500 • 3 bed • 1 bath • 731 ft²
3 bedroom detached bungalow for sale in Grainsby Avenue, Holton-le-Clay, Grimsby, Lincolnshire, DN36 — £190,000 • 3 bed • 1 bath • 973 ft²










































































