Nine homes planning consent — near-term build-and-sell for small housebuilders.
Freehold development site approx. 1.26 acres with vacant possession
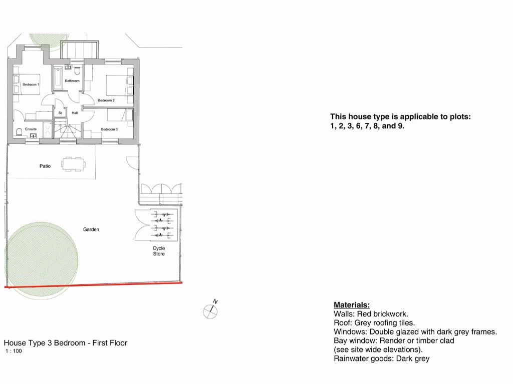
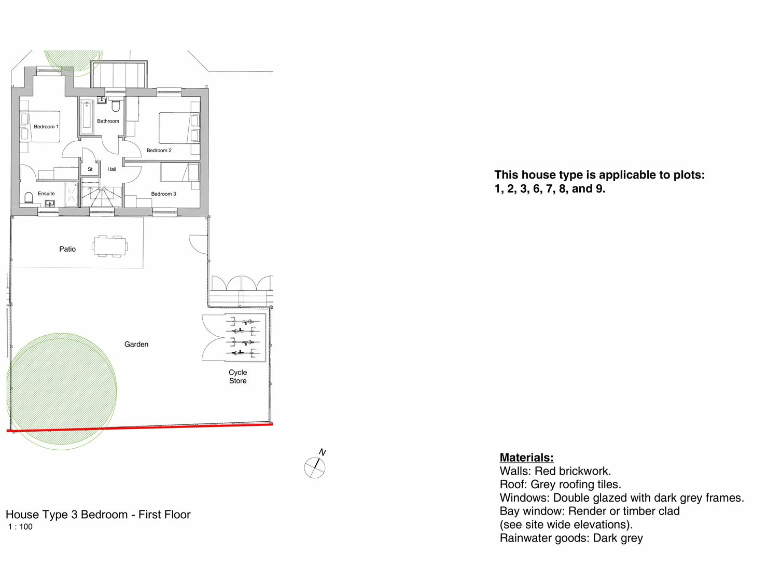
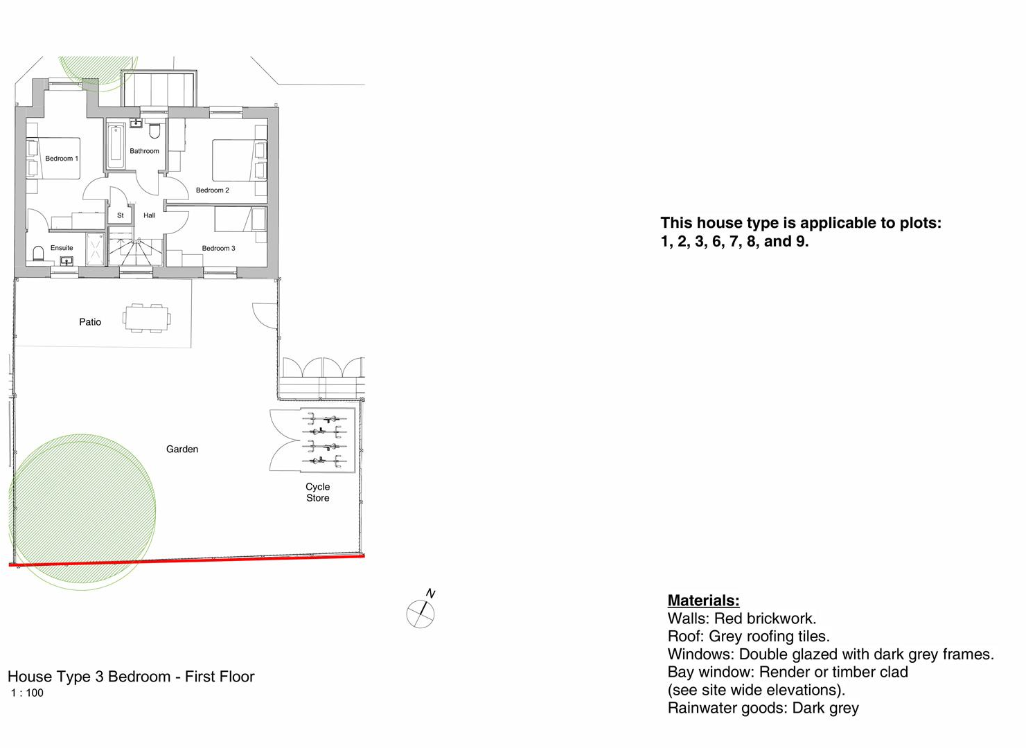
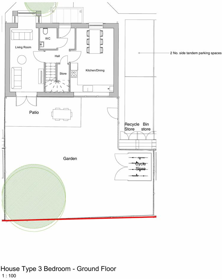
A substantial freehold development parcel of approximately 1.26 acres with detailed planning granted for nine three‑bed dwellings. Consent (Somerset Council ref 08/21/00077, decision 29/08/2025) covers a mix of detached and semi‑detached homes, each with parking and private garden space — plots range from c.968 to 1,054 sq ft. The brochure-stated GDV is circa £2.845–2.865m, offering a near-term build-and-sell opportunity for a small housebuilder or investor.
The site sits at the rear of recently built apartments off Taunton Road, close to Bridgwater town centre and rail connections, with easy M5 access. Services, mobile signal and broadband are reported as available; flood risk is low. The legal pack is available and planning drawings and rights of access (via the existing apartment car park) are set out there — examine these before bidding.
Key commercial points are clear: planning in place, vacant possession, and an extended 8‑week completion. The lot will be sold by live online auction; buyers must allow for the buyer’s premium and the auction process. Note the existing apartment car park is not included — access rights and any easements are documented in the legal pack.
Material risks and limitations are straightforward and disclosed: the surrounding area scores high for crime and very high on local deprivation indices, which may affect sales values and marketing strategy. Individual gardens are small-to-average for houses of this size. Prospective purchasers should review utilities, rights, constraints and any site-specific conditions in the legal pack and factor in abnormal costs or additional site preparation works.
Land for sale in Old Basin, Bridgwater, TA6 — £310,000 • 1 bed • 1 bath
Plot for sale in Land With Planning | TA7 — £195,000 • 6 bed • 2 bath • 2024 ft²
Land for sale in Bridgwater, Somerset, TA6 — £400,000 • 1 bed • 1 bath
Residential development for sale in Canal House, 1 Market Street, Highbridge, Somerset TA9 3BW, TA9 — £199,950 • 1 bed • 1 bath
Residential development for sale in High Street, Ashcott, Bridgwater, Somerset, TA7 — £350,000 • 1 bed • 1 bath • 5911 ft²
Land for sale in The Depot, Bailiffs' Wall, Axbridge, Somerset, BS26 — £475,000 • 1 bed • 1 bath


































































































































































