Cleared half-acre parcel with consent for two family homes near Bridgwater.
Full planning permission for 2 x 3-bed semi-detached homes (Ref: 37/24/00079)
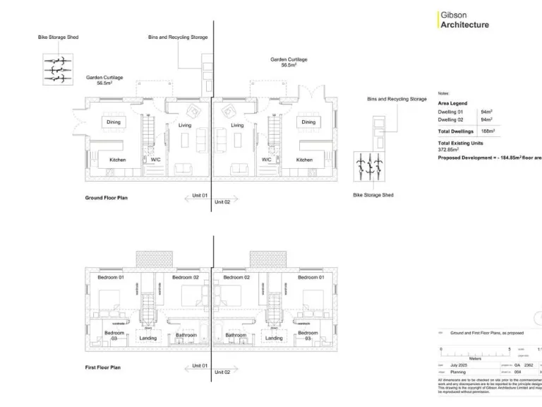
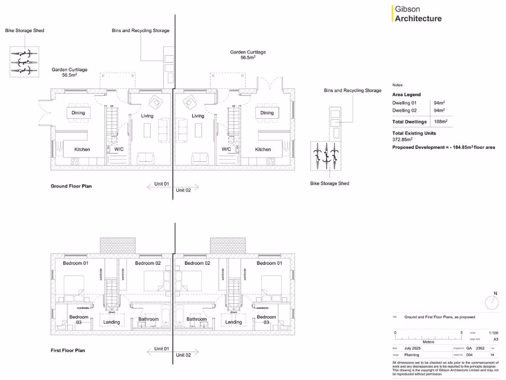
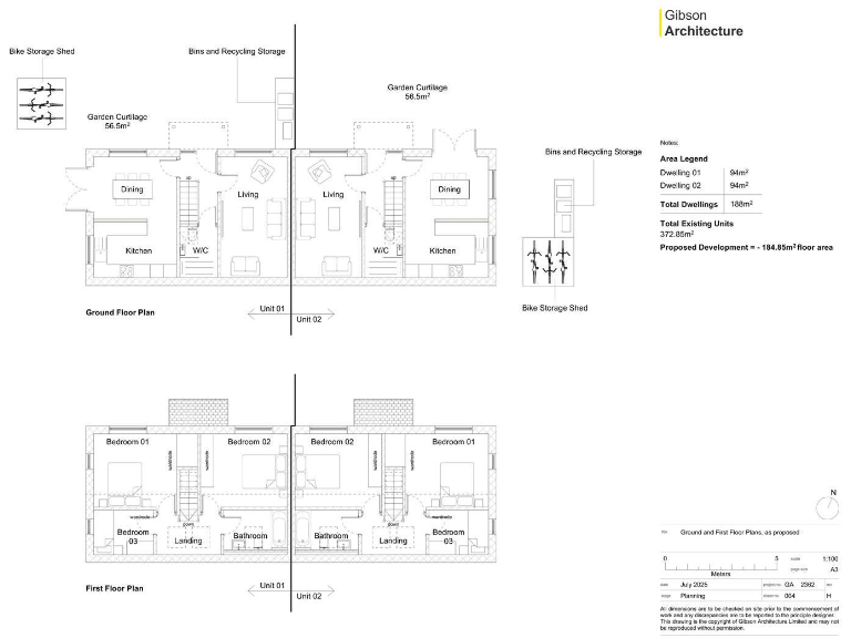
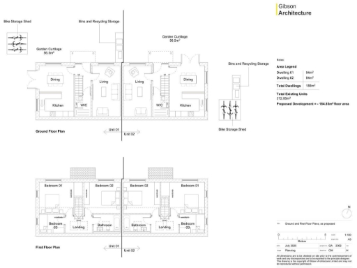
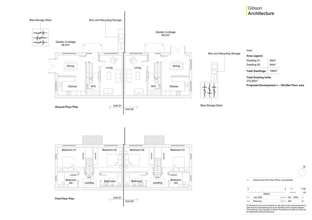
A cleared 0.52-acre freehold parcel on the edge of Fordgate, offered with full planning permission for two three-bedroom semi-detached houses (Ref: 37/24/00079). The consent, granted 17/10/2025, reduces speculative risk and gives a clear route to delivery for a small-scale residential development aimed at owner-occupiers or buy-to-let purchasers. Each proposed unit is c.1,012 sqft with private garden and off-street parking; the scheme’s GDV is estimated at c. £750,000.
The site benefits from open rural views, a quiet hamlet setting and vehicular access from Chapel Road. The wider plot (approx. 0.35 acres remaining) may offer further development potential subject to planning, but any purchaser should confirm boundaries, easements and buildable area. Services and drainage require verification in the legal pack and on site to confirm connection points and costs.
Practical considerations include the planning condition that houses are to be delivered as Custom Build/self-build plots, very slow broadband speeds, average mobile signal and an area assessed as deprived. The sale is by timed online auction with an eight-week completion window; a buyer’s premium and auction deposit apply. These factors will suit developers or investors able to proceed quickly and experienced in small rural schemes.
In short: a low-flood-risk, medium-scale rural development plot with cleared consent for two marketable family homes. It offers quick delivery potential but requires due diligence on utilities, planning conditions and any build obligations before committing.
Plot for sale in Site With Planning | Bridgwater, TA6 — £425,000 • 27 bed • 18 bath • 11368 ft²
Land for sale in Old Basin, Bridgwater, TA6 — £310,000 • 1 bed • 1 bath
Land for sale in Pitney, Langport, TA10 — £175,000 • 6 bed • 4 bath
Plot for sale in Residential Development Site, with outline planning consent, Othery, TA7 — £800,000 • 1 bed • 1 bath
Plot for sale in North Curry, Knapp, Hill Farm, TA3 6BE - 3 Individual Building Plots - Prices From £160,000 , TA3 — £160,000 • 1 bed • 1 bath • 7216 ft²
6 bedroom detached house for sale in Pitney, Langport, TA10 — £175,000 • 6 bed • 4 bath • 2457 ft²






































































































































