Five bedrooms and basement near Dane Park and Margate's beaches — chain free.
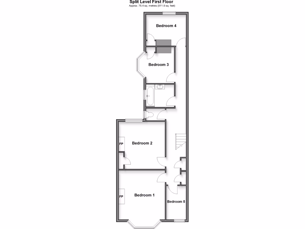
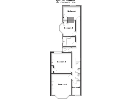
- Five double bedrooms with high ceilings and bay window
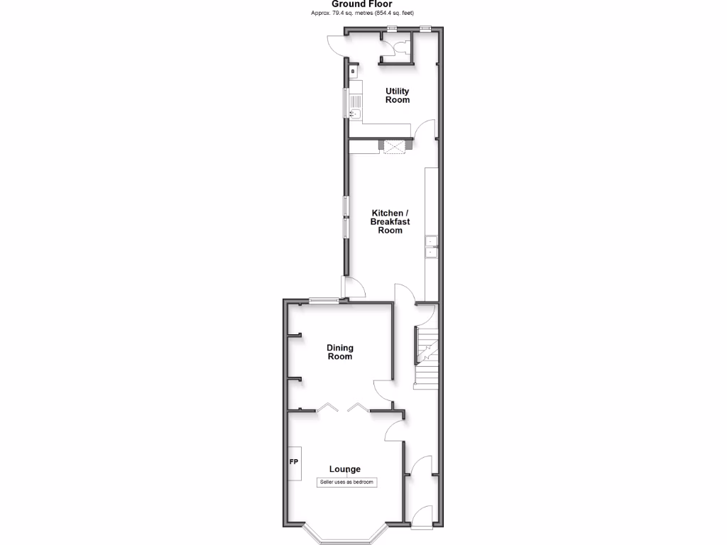
- Large kitchen–breakfast room and separate dining room
- Basement offers storage or conversion potential (subject to consents)
- Single bathroom plus separate toilet for five bedrooms
- Garden needs refurbishment but has decent plot size
- Dated kitchen and some fittings will need modernisation
- Assumed cavity walls with no added insulation; energy upgrades likely
- Local area: high crime and very deprived — affects resale/rental risk
A substantial five-bedroom Victorian semi-detached house offering generous room proportions and period character close to Margate Old Town and the beach. The large kitchen–breakfast room and separate dining room make the house well suited to family life and entertaining, while the deep rooms and high ceilings preserve authentic features.
Practical space includes a long utility room, basement for storage or conversion (subject to consents) and a decent rear garden that will repay some gardening effort. The property is chain-free and freehold, with good broadband and excellent mobile signal — practical benefits for modern living or letting.
Important points to note: there is a single bathroom and separate toilet for five bedrooms, the kitchen is dated and will need modernisation, and the garden requires TLC. The building is older (1930–1949) with assumed cavity walls without added insulation, so buyers should budget for energy-efficiency upgrades. The local area shows high crime and significant deprivation; potential purchasers should consider this when assessing suitability and resale or rental prospects.
This house will suit buyers seeking space and period appeal who are prepared to invest in modernisation, or investors targeting multi-bedroom rental in a seaside town. Its location near Dane Park, several “Good” schools and Margate’s amenities gives strong lifestyle and rental attractions once updated.
5 bedroom terraced house for sale in Arundel Road, Margate, Kent, CT9 — £500,000 • 5 bed • 1 bath • 1820 ft²
5 bedroom terraced house for sale in Warwick Road, Cliftonville, Margate, Kent, CT9 — £400,000 • 5 bed • 1 bath • 1540 ft²
5 bedroom semi-detached house for sale in Addiscombe Road, Addiscombe Road, Margate, Kent, CT9 — £750,000 • 5 bed • 3 bath • 2301 ft²
4 bedroom semi-detached house for sale in Thanet Road, Margate, Kent, CT9 — £350,000 • 4 bed • 1 bath • 825 ft²
3 bedroom terraced house for sale in Dane Road, Margate, Kent, CT9 — £400,000 • 3 bed • 1 bath • 745 ft²
4 bedroom terraced house for sale in Connaught Road, Margate, CT9 — £415,000 • 4 bed • 1 bath • 1900 ft²






























































