**Standout Features:**
- Chain-free status
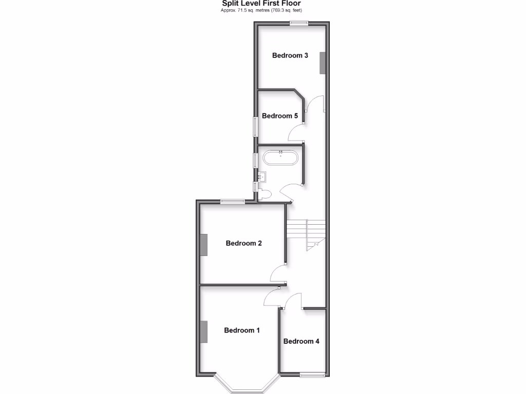
- Generously sized rooms (5 bedrooms total)
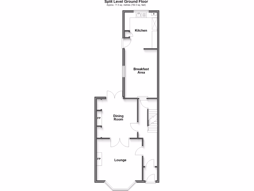
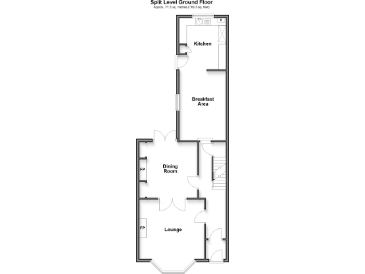
- Separate kitchen and dining area ideal for entertaining
- Sunny rear garden, perfect for family gatherings
- Walking distance to sandy beaches, shops, schools, and restaurants
- Fast mobile signal and broadband speeds
**Potential Concerns:**
- Overgrown garden requiring maintenance
- Cavity walls without insulation (assumed)
- High crime rate in the area (considered high)
- Property may need updates or repairs (factoring in renovation potential)
Discover the potential of this charming Victorian terraced house, offering abundant space for families and the freedom to customize your own living environment. With five generous bedrooms and high ceilings, you'll find comfort and versatility in every corner. The separate kitchen and dining area are perfect for family meals and entertaining friends, while the sunny rear garden presents a blank canvas for outdoor enjoyment, albeit in need of some TLC.
Situated in the vibrant CT9 postcode, you’ll be just a stroll away from beautiful sandy beaches, reputable schools, and a lively selection of shops and restaurants, making this home ideal for families and beach lovers alike. Although the property presents some maintenance challenges, such as an overgrown garden and possible insulation updates, it's a fantastic opportunity for those looking to invest in a home they can shape to their liking. Don’t miss out on this rare chance to create your dream abode in a desirable coastal location!
5 bedroom semi-detached house for sale in Madeira Road, Cliftonville, Margate, Kent, CT9 — £600,000 • 5 bed • 1 bath • 1228 ft²
5 bedroom terraced house for sale in Arundel Road, Margate, Kent, CT9 — £500,000 • 5 bed • 1 bath • 1820 ft²
3 bedroom semi-detached house for sale in Albion Road, Cliftonville, Margate, Kent, CT9 — £245,000 • 3 bed • 2 bath • 1098 ft²
2 bedroom detached house for sale in Lyndhurst Avenue, Cliftonville, Margate, Kent, CT9 — £395,000 • 2 bed • 1 bath • 798 ft²
5 bedroom terraced house for sale in Connaught Road, Margate, Kent, CT9 — £350,000 • 5 bed • 2 bath • 1701 ft²
3 bedroom end of terrace house for sale in Grotto Road, Cliftonville, Margate, Kent, CT9 — £375,000 • 3 bed • 1 bath • 701 ft²






























































































































