Chain-free four-storey end-of-terrace, freehold
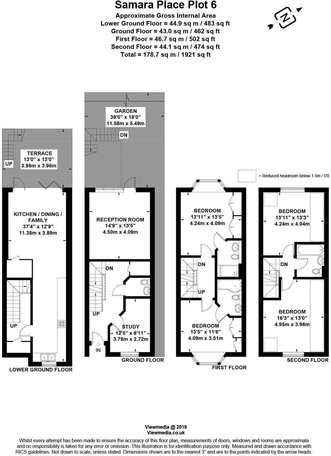
This four-storey end-of-terrace townhouse in Raynes Park delivers generous family accommodation across approximately 1,921 sq ft. The layout includes four double bedrooms, three luxury bath/shower rooms (two en-suite), a reception room with bi-fold doors to the rear garden and a lower-ground kitchen/dining/family room that opens to a terrace. High-spec finishes include integrated appliances, underfloor heating and an air-source heat pump; EPC rating B.
The house is chain-free and offered freehold, making a straightforward purchase for growing families or professionals seeking roomy, turnkey living close to good schools and transport links. The property benefits from off-street parking and a landscaped rear garden/terrace that provides useful outdoor space for children and entertaining.
Practical considerations are clear: heating is electric-led (air-source heat pump with underfloor systems) and the property uses electricity as its main fuel, so check personal running-cost expectations. Council tax is described as expensive. Off-street parking is provided but precise layout and capacity should be confirmed.
Overall this is a modern, well-specified townhouse with flexible multi-level living and strong local amenities. It will suit families or professionals prioritising space, contemporary finishes and convenient access to Raynes Park transport and schools, while buyers should factor in running costs and confirm parking and service details before committing.
4 bedroom terraced house for sale in Kingston Road, Raynes Park, SW20 — £1,100,000 • 4 bed • 3 bath • 1473 ft²
4 bedroom semi-detached house for sale in Beverley Way, Raynes Park, SW20 — £750,000 • 4 bed • 1 bath • 1576 ft²
4 bedroom house for sale in Greenview Drive, Raynes Park, SW20 — £1,100,000 • 4 bed • 3 bath • 1744 ft²
5 bedroom semi-detached house for sale in Camberley Avenue, West Wimbledon, London, SW20 — £1,150,000 • 5 bed • 2 bath • 1523 ft²
4 bedroom terraced house for sale in Durham Road, West Wimbledon, SW20 — £1,250,000 • 4 bed • 2 bath • 1497 ft²
4 bedroom semi-detached house for sale in Camberley Avenue, West Wimbledon, SW20 — £995,000 • 4 bed • 2 bath • 1266 ft²


























































