Large one-bed with garden and off-street parking near The Broadway.
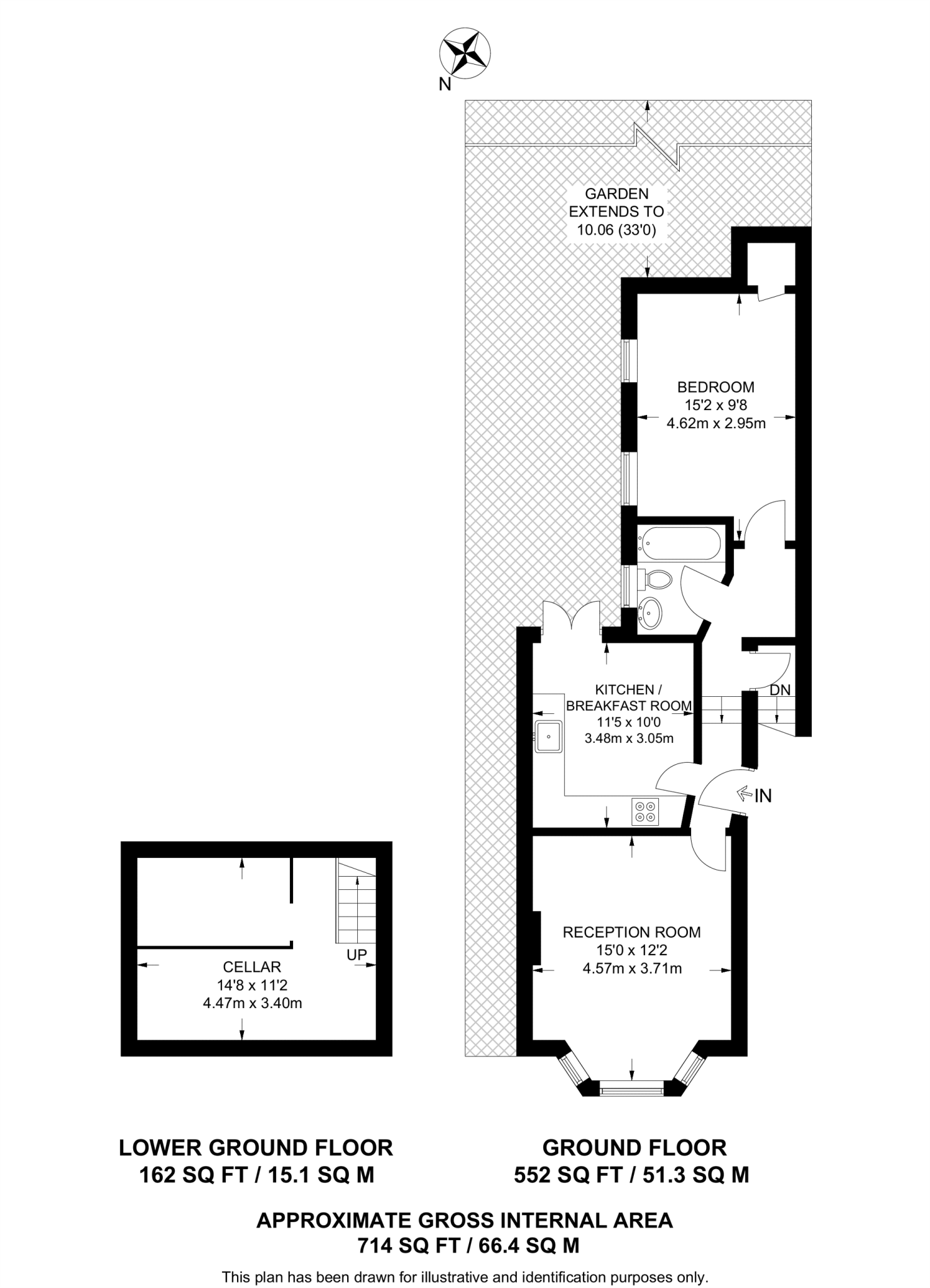
Ground-floor one-bedroom with bay-front reception room
A bright ground-floor one-bedroom flat in central Wimbledon, this property offers generous space for a single buyer or couple. The bay-fronted reception room and separate kitchen with dining area open onto a private rear garden, while a sizeable cellar provides useful extra storage. Off-street driveway parking is an uncommon convenience for this central location.
The flat combines period character with modern updates: double-glazed windows (fitted after 2002), a modern bathroom and a contemporary kitchen. At about 714 sq ft, the accommodation feels larger than many one-bedroom flats and benefits from fast broadband and excellent mobile signal — practical pluses for remote working and daily life.
Buyers should note this is a leasehold flat in a converted Victorian building (constructed c.1900–1929) with solid-brick walls assumed to have no cavity insulation. There is no flooding risk recorded, but the local area has a high crime score and the property may benefit from thermal upgrades or other maintenance works over time. Leasehold terms and service charges should be checked before committing.
Location is a key strength: The Broadway’s shops, cafés and transport links are on the doorstep, and several highly rated local schools are within reach. This makes the flat appealing to first-time buyers seeking a well-connected, spacious one-bedroom in an affluent Wimbledon neighbourhood, provided they accept the leasehold status and potential fabric improvements.
1 bedroom flat for sale in Horatio Place, Wimbledon, London, SW19 — £485,000 • 1 bed • 1 bath • 532 ft²
1 bedroom flat for sale in Alexandra Road, Wimbledon, London, SW19 — £350,000 • 1 bed • 1 bath • 447 ft²
1 bedroom flat for sale in Leopold Road, Wimbledon, London, SW19 — £475,000 • 1 bed • 1 bath • 585 ft²
1 bedroom flat for sale in All Saints Road, South Wimbledon, London, SW19 — £335,000 • 1 bed • 1 bath • 497 ft²
1 bedroom flat for sale in Leopold Road, Wimbledon, London, SW19 — £350,000 • 1 bed • 1 bath • 401 ft²
1 bedroom apartment for sale in Princes Road, Wimbledon, London, SW19 — £460,000 • 1 bed • 1 bath • 493 ft²


















































































































































































































































