Character apartment with parking close to Wimbledon amenities.
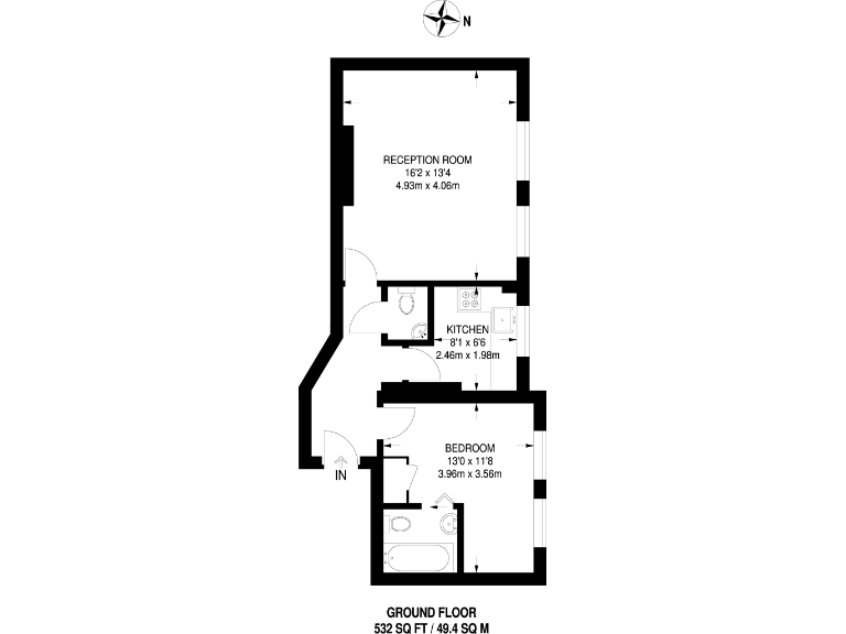
Ground-floor one-bedroom flat with en suite bathroom
This ground-floor one-bedroom apartment offers generous living space and period-style character in central Wimbledon. The reception room feels roomy with high ceilings and large sash-style windows that bring natural light into the flat; a separate kitchen and guest cloakroom add practical flexibility for everyday life and entertaining. The bedroom includes a built-in wardrobe and an en suite bathroom, a convenient layout for single buyers or couples.
Practical benefits include off-street parking, mains gas central heating with boiler and radiators, excellent mobile signal and fast broadband — useful for commuting or working from home. The 532 sq ft layout is average-sized but well planned, and local amenities on Kingston Road plus Wimbledon town centre are within easy reach, making this a convenient, well-connected base.
Important facts and considerations: the property is leasehold (service charge stated as £1,000, frequency unknown) and the official construction date is listed as 1991–1995 despite period-style external features. Double glazing is present but the installation date is unknown. These points — plus no known flood risk — should be checked in due diligence.
This apartment will suit a buyer seeking a central Wimbledon home with character, practical parking and good transport links, or an investor looking for a well-located one-bed asset. Expect to confirm lease length, service charge details and any recent works to glazing or communal fabric before committing.
1 bedroom flat for sale in Alexandra Road, Wimbledon, London, SW19 — £350,000 • 1 bed • 1 bath • 447 ft²
1 bedroom flat for sale in Alt Grove, Wimbledon, London, SW19 — £450,000 • 1 bed • 1 bath • 518 ft²
1 bedroom flat for sale in Alexandra Road, Wimbledon, London, SW19 — £450,000 • 1 bed • 1 bath • 714 ft²
1 bedroom flat for sale in Leopold Road, Wimbledon, London, SW19 — £475,000 • 1 bed • 1 bath • 585 ft²
1 bedroom flat for sale in Windlesham Grove, Southfields, London, SW19 — £300,000 • 1 bed • 1 bath • 480 ft²
1 bedroom flat for sale in Kingston Road, Wimbledon, London, SW19 — £320,000 • 1 bed • 1 bath • 381 ft²






































































































