Well-located three-bed home with private garden and scope to improve.
- Three bedrooms with functional family layout
- Private rear garden with sunny aspect and paved patio
- Potential for off-road parking and garage (subject to permission)
- Double glazed throughout; sun/garden room adds light
- Compact overall size (approximately 687 sq ft)
- Electric night storage heating throughout
- Single family bathroom only
- Decent plot with hard-standing and garden shed
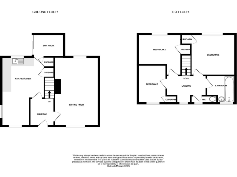
This three-bedroom end-of-terrace on Bingham Road sits on a generous plot in popular Bishopdown, ideal for a growing family seeking outdoor space close to schools and green walks. The house is well cared for with double glazing throughout and a sun/garden room that brings light into the rear, private garden —a key selling point for children and entertaining.
Internally the layout is practical: a sizeable lounge, large kitchen/diner and an entrance porch on the ground floor, with three bedrooms and a bathroom upstairs. At about 687 sq ft the accommodation is compact for a three-bedroom home but functional; the property will suit buyers seeking a well-located family home they can personalise rather than a finished renovation.
Practical considerations are clear and factual. Heating is by electric night storage heaters and there is a single family bathroom, which may be limiting for some households. There is also potential to create off-road parking and add a garage, but this would require planning permission. Overall the home offers a sunny, private garden and good local amenities, with scope to add value through modest updating.
Early viewing is recommended for families who value location, outdoor space and nearby excellent primary schools, and who are comfortable carrying out targeted improvements such as modernising heating or bathroom facilities.
3 bedroom end of terrace house for sale in St. Clements Way, Bishopdown, SP1 — £325,000 • 3 bed • 1 bath • 597 ft²
3 bedroom end of terrace house for sale in St. Ursulas Close, Bishopdown, Salisbury, SP1 — £340,000 • 3 bed • 1 bath • 730 ft²
3 bedroom semi-detached house for sale in Butts Road, Salisbury, Wiltshire, SP1 — £355,000 • 3 bed • 2 bath • 1074 ft²
3 bedroom detached bungalow for sale in Portland Avenue, Salisbury, SP2 — £420,000 • 3 bed • 1 bath • 1438 ft²
2 bedroom semi-detached house for sale in Bishopdown, SP1 — £260,000 • 2 bed • 1 bath • 536 ft²
3 bedroom semi-detached house for sale in Old Dairy Close, Salisbury, SP2 — £300,000 • 3 bed • 1 bath • 953 ft²






























