**Standout Features:**
- Spacious four-bedroom semi-detached house from the 1930s
- Overlooking the serene Heworth Golf Course
- Generous wrap-around gardens with mature landscaping
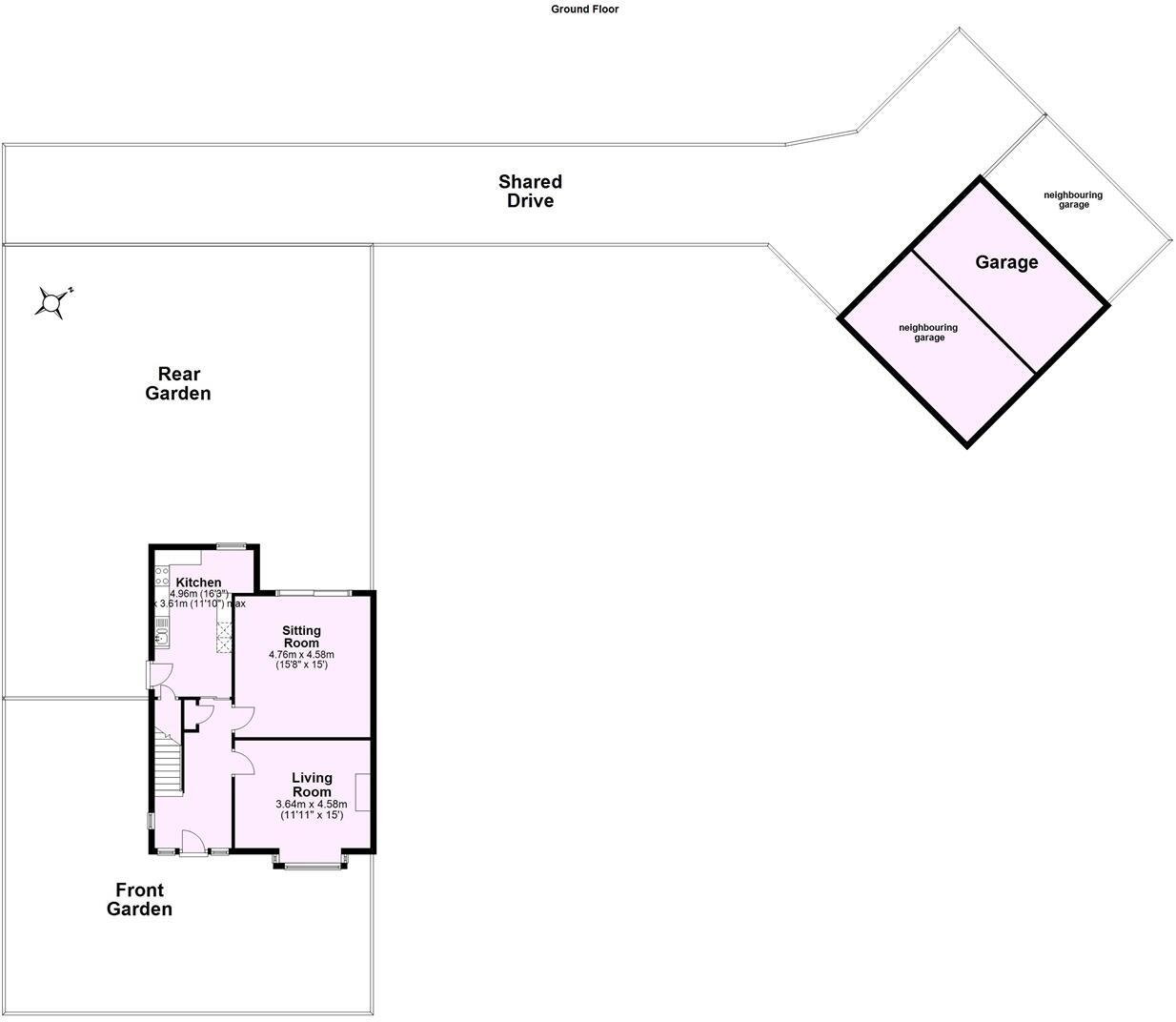
- Well-appointed fitted kitchen and two reception rooms
- Garage with shared driveway access
- Excellent proximity to York city center and amenities
**Concerns:**
- Average condition; potential renovations needed to modernize
- Above-average council tax
Nestled in a peaceful setting with picturesque views over Heworth Golf Course, this charming four-bedroom semi-detached home embodies the perfect blend of period elegance and contemporary living. Spanning an average size of 1,439 square feet, the residence features ideal spaces for both relaxation and entertainment, including two inviting reception rooms and a well-equipped fitted kitchen. The first floor boasts three spacious double bedrooms alongside a versatile single room, suitable for either a bedroom or home office.
Outside, the generous gardens wrap around the property, offering serene, mature landscaping that invites outdoor enjoyment. With a garage and shared driveway for convenient parking, this home is a hidden gem awaiting a new owner's personal touch. Though some modernization may be required, the unique position and charm of the house present a fantastic opportunity for those looking to create their dream home in a secure, family-friendly neighborhood. Don’t miss your chance to explore this exceptional property!
3 bedroom semi-detached house for sale in Elmfield Avenue, York, YO31 9LX, YO31 — £310,000 • 3 bed • 1 bath • 943 ft²
4 bedroom semi-detached house for sale in Templemead, York, YO31 9LQ, YO31 — £650,000 • 4 bed • 1 bath • 1661 ft²
5 bedroom semi-detached house for sale in Irwin Avenue, Heworth, York, YO31 7TX, YO31 — £550,000 • 5 bed • 3 bath • 1540 ft²
3 bedroom detached house for sale in Woodlands Grove, York, YO31 — £670,000 • 3 bed • 2 bath • 1347 ft²
4 bedroom semi-detached house for sale in Abbotsway, York, North Yorkshire, YO31 — £400,000 • 4 bed • 1 bath • 1687 ft²
4 bedroom semi-detached house for sale in Woodside Avenue, Heworth, York YO31 0QS, YO31 — £395,000 • 4 bed • 2 bath • 1110 ft²






















































































































